欢迎光临聚设汇,装修找设计就上聚设汇!
咨询电话:15602987227
登录
注册
全国
[切换城市]
X
城市列表
全国
深圳
广州
佛山
东莞
福州
厦门
上海
北京
柳州
九江
杭州
南京
发布需求
搜索全部
家居装修
设计师
首页
家居装修
公寓
一房
二房
三房
多房
复式
别墅
商业装修
酒店
办公
餐厅
会所
样板房
店铺
展厅
文化
酒吧
SPA
茶楼
商场
学校
咖啡厅
售楼处
电影院
其它
设计师
建材商城
陶瓷
卫浴
五金
墙纸
布艺
涂料
衣柜
橱柜
软装
家具
厨电
音响
家电
大理石
门
新闻资讯
精英专访
高峰论坛
对 话
行业动态
装修课堂
首页
>
商业
> sine1960
sine1960
发布日期:2019-06-22 点击:2660次 分享到:
QQ空间
新浪微博
腾讯微博
微信
人人网
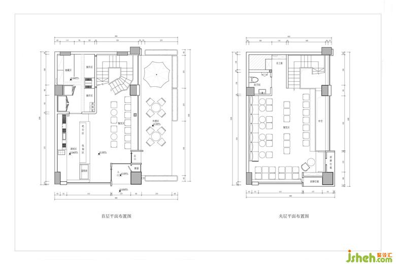
佛山装修公司
佛山装修公司
。
佛山装修公司
共2页:
上一页
1
2
下一页
全建文
易思维室内设计 设计总监
设计收费:
面议
元/平
擅长类型: 餐饮,办公,家居住宅
在线咨询
我的作品
更多>>
办公室设计:沉浸式工作的生活剧场
点击:4334次
佛山融佳臻园家装设计:简,是一种生活态度
点击:3254次
易思维家装设计 ▏素 · 在时光的角落起舞
点击:7337次
易思维别墅设计 ▏在水之滨,居一室繁华
点击:8078次
天古图书馆
点击:16577次
同类型案例推荐
更多>>
朴巢家宴
点击:3909次
艾洛设计|昆明·大馆Daguan
点击:4477次
席萃小厨餐厅设计
点击:4204次
Wanwea·元餐厅设计:山海经后饕餮宴
点击:4529次
集嘉设计 | 花重锦官城火锅店设计
点击:3766次
关于我们
了解聚设汇
加入我们
成为设计师
成为设计师
发布作品
商家入驻
商家入驻
发布产品
扫描二维码关注我们的微信
深圳市聚设汇文化传媒有限公司
主编热线:15602987227
总部:深圳市罗湖区梨园路128号宝能汽车大楼416单元
佛山、东莞、成都、重庆、福州、厦门、南昌、武汉、
杭州、苏州、温州、郑州、长春、沈阳、贵阳、柳州、
哈尔滨、九江等城市设立办事处
© 2017-2021 Jsheh.com 版权所有
粤ICP备17079093号
展开
收缩
QQ咨询
在线咨询
282039429
电话咨询
15602987227
回到顶部
装修计算器
北京
上海
广州
深圳
佛山
福州
长沙
株洲
湘潭
衡阳
岳阳
武汉
郴州
杭州
南京
苏州
成都
重庆
郑州
福州
厦门
天津
西安
合肥
常德
无锡
济南
宁波
㎡
一室
二室
三室
四室
一厅
二厅
三厅
四厅
一厨
二厨
三厨
四厨
一卫
二卫
三卫
四卫
一阳台
二阳台
三阳台
四阳台
咨询报价
您家的装修预算
?
元
材料费:
?
元
人工费:
?
元
设计费:
?
元
质检费:
?
元