设计公司:启物设计
主案设计:黄鑫
项目时间:2019
项目面积:68㎡
项目风格:现代 极简
项目造价:45w
项目地址:龙华 福安雅园
本案屋主是把彭于晏当做头像的男子,呃。。画风好像不对。一个脑洞大到无边,一个人狠话不多的启物,双方过了九九八十一招,总算打造出赵哥家的小凡尔赛宫。
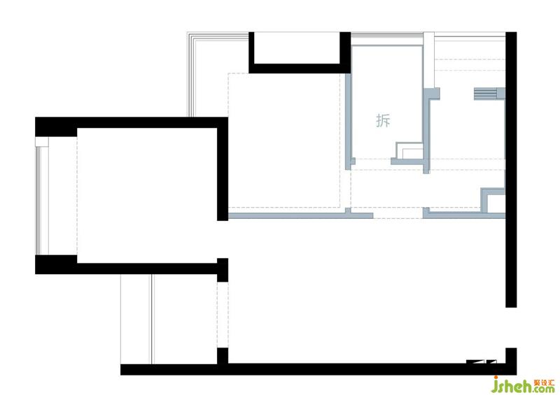
《 Plan 》
68m²的房子毕竟不好对付,启物先是把墙全部拆了,再进行大刀阔斧的改造。装修设计
重新规划后如图,整个案例的思路是: 1.(敲重点!)用柜子来形塑空间。2.(敲亮点!)客餐厅非常规的布局。消灭了纯过道。
《 Living Room 》
上一张客厅大视角。 EN~电视墙好像是吧台?没错!68m²的房子也可以有吧台。
EN~镜头拉近一点,吧台和餐桌是一体的?没错!68m²的房子也可以餐吧一体。这里才是聚会的中心。
EN~亮点!68m²的房子也有双通道的布局,在家也能少走弯路,此举消灭了旧房的过道。装修设计
不用刻意做造型,对称的柜子形塑空间。左边是鞋柜、中间沙发,右边给客厅用,刚刚好!
凡尔赛宫配小卫。在沙发旁开放格就要担起边几的重任,这柜子真多功能!
