
改造策略
细节体现品质
改造设计过程中,设计师充分考虑工作人员办公环境的优化。合理的采光设置,工作休息区的结合,人性化的办公家具选择,空间绿色的植入,办公室设计这些都让长时间在这个空间中的工作人员有舒适的办公环境,优质的环境与优质的服务相辅相成。


在材料语言的解读上,我们使用颜色编织地毯、定制编织地毯、超白钢化背漆玻璃、白色烤瓷铝板、木纹转印铝板、仿地毯地砖、木纹铝吸音板等经济牢固的材料,渗透在观者的感官里,以诉说着城市的沧桑岁月和文化内涵。


每个人对青岛这座座城市,都有深深的理解,环境亦如斯,建筑亦如斯,室内空间亦如斯。后疫情时代人类将要面临的诸多课题,这是后疫情时代带来的深邃思考,办公室设计是人类文明走向“重生”的过程,实现以眼观,以心去觉察,去感叹经过重新设计规划的市民中心,恢复了往日的活力,相信好的设计能够不断自我更新,为城市赋能。空间以它的方式和力量为都市人注入能量,在轻微却不间断的新陈代谢中,塑造新生。

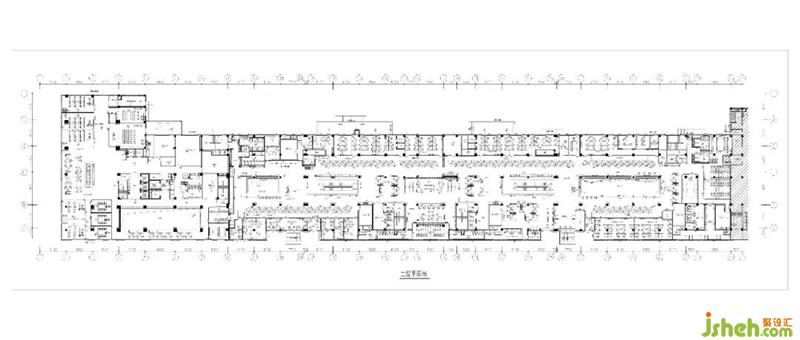
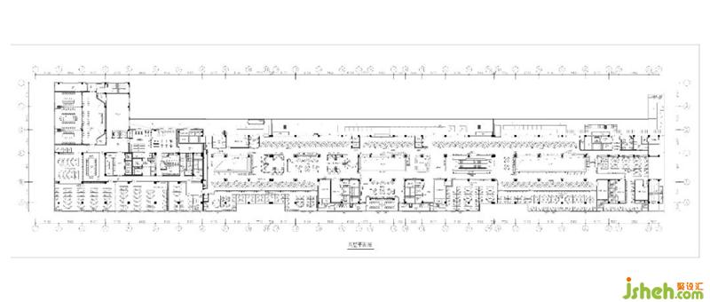
平面图



更多办公室设计请关注聚设汇装修平台: