欢迎光临聚设汇,装修找设计就上聚设汇!
   咨询电话:15602987227
登录    注册
聚设汇
首页 > 商业 > 江苏九里湖商务办公楼设计:私人·雅致·高端

江苏九里湖商务办公楼设计:私人·雅致·高端

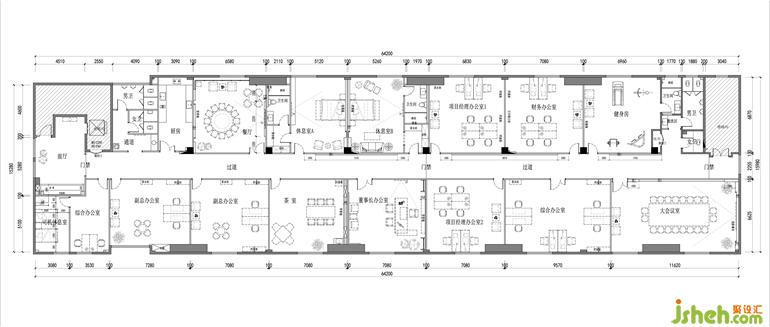
休息室 

Lounge

在细密有致的排列中缀以灯带,使光影的明暗与线条的层序性形成对比。商务办公楼设计表达个性化的室内空间,突显会所不拘一格的优雅。

美,呈现于细微之处。

走廊 

Corridor

走廊延续办公区装修风格,商务办公楼设计空间简洁秩序,深色木纹和浅色墙板,形成鲜明对比,丰富了空间层次感。

墙上装饰画既是空间引导,也代表空间与自然相结合,诠释人、空间、自然三者间的关系。

更多商务办公楼设计请关注聚设汇装修平台:

江苏平衡艺术设计

设计收费:300 元/平             

擅长类型: 餐厅、办公室、地产

在线咨询

扫描二维码关注我们的微信

深圳市聚设汇文化传媒有限公司
主编热线:15602987227
总部:深圳市罗湖区梨园路128号宝能汽车大楼416单元
佛山、东莞、成都、重庆、福州、厦门、南昌、武汉、
杭州、苏州、温州、郑州、长春、沈阳、贵阳、柳州、
哈尔滨、九江等城市设立办事处
© 2017-2021 Jsheh.com 版权所有 粤ICP备17079093号
展开
回到顶部