欢迎光临聚设汇,装修找设计就上聚设汇!
   咨询电话:15602987227
登录    注册
聚设汇
首页 > 商业 > Bosun新宝茶餐厅设计

Bosun新宝茶餐厅设计

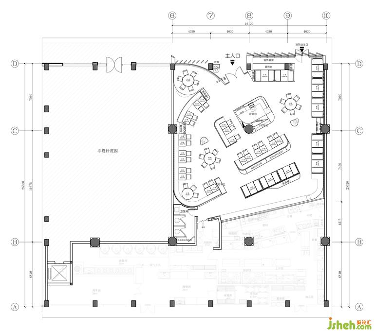
餐厅唯一的包间,是根据原建筑的空间切割改造而成,白色的飘窗让空间看起来整体通透且简洁。由于空间有限,所以在照明上我们选用了大气简约的吊灯、以及在天花的凹槽处设放了灯带,放大了空间,也充分地起到照明作用。茶餐厅的设计比较考验设计师的能力,在造型和色彩搭配上都要力求休闲和谐,在新奇的基础上还要让人感觉放松,茶餐厅设计在里面进餐能让人忘掉繁忙的生活带来的疲惫,享受美食,度过一段美好的时光。

更多茶餐厅设计请关注聚设汇装修平台:

深圳市尚邦装饰设计工程有限公司设计总监

设计收费:1000 元/平             

擅长类型: 地产,会所,医疗,餐厅,豪宅

在线咨询

扫描二维码关注我们的微信

深圳市聚设汇文化传媒有限公司
主编热线:15602987227
总部:深圳市罗湖区梨园路128号宝能汽车大楼416单元
佛山、东莞、成都、重庆、福州、厦门、南昌、武汉、
杭州、苏州、温州、郑州、长春、沈阳、贵阳、柳州、
哈尔滨、九江等城市设立办事处
© 2017-2021 Jsheh.com 版权所有 粤ICP备17079093号
展开
回到顶部