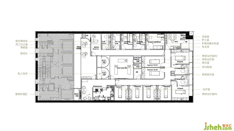
治疗室 -身体健康
睡眠和压力管理计划在私人治疗室进行,该治疗室提供射频拔罐和冷冻疗法等健康服务。养生庭设计木质外壳和隐藏式温暖照明有助于透过一系列促进力量、灵活性和整体健康的先进疗法来增强使用者的身体活力。


营养护理区-营养健康
在营养护理领域进行膳食管理计划。 各领域专家将对使用者的身体组成进行分析,并制定个人化的健康饮食方案。 养生庭设计舒适的角落提供平静和休闲的时刻,透过个人化的营养指导帮助滋养使用者的身体,促进他们的健康。

这场流行病成为了现有趋势的催化剂,而不是对健康的室内装饰进行新的、全面的重置。 健康和福祉空间的建筑和设计不断发展,我们希望这个空间的使用者能够发现这个新概念是一个令人难忘的集群。








更多养生庭设计请关注聚设汇装修平台: