项目信息▽
项目名称/金辉·中央铭著(重庆)
项目类别/顶层会所(430m²)
设计风格/现代轻奢
材质说明/克里斯白石材、冷翡翠石材、白金沙石材、仿古铜不锈钢
项目硬装设计师/庞一飞、邓书鸿、卢利
空间摄影师/南图摄影
「共享,不设限」
在经济共享、资源共享的高速发展的时代,
“共享”已然成为社会的另一热点。
项目作为一处共享生活的会所空间,
设计实现从“无序”到“有序”的生活体验,
形成一处'无界'的当代会所。
reception hall/归属
重庆这座城市,气象自由而气质纯净,设计追寻其中的脚步,于空阔、温度间探寻艺术之光。


空间的气度由大面积的留白而添上一层滤镜,金属、石材等材质的感知,在经现代工法的演绎后,形成纯粹而有序的观感。

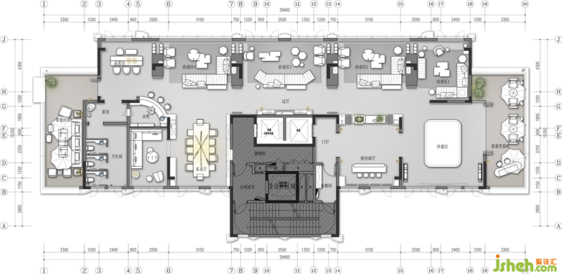
Chat Area/叙事
空间分合为数个场域,分设洽谈区、私宴厅、品茗区及VIP室,兼顾了聚会用餐、休憩聊天、品茗等功能。
落地玻璃墙幕引入自然景观,晴时明朗,窗外,收纳了南滨路的美与繁华,将风景极佳的融侨公园纳入视野,光的介入,折射出一片浪漫之色。
软式搭配浅色调皮质沙发,塑造空间温润的基底,视角凝看天幕,曼妙的流性灯饰流露些许温情,围坐于次,从喧嚣尘世中抽身片刻,感受静谧,休憩身心。
