
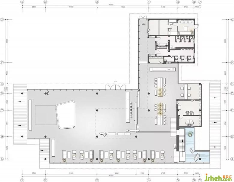
一楼接待区和二楼的VIP区之间,静默存在又彼此串联。吊脚楼强化了一楼与二楼架构空间的起、承、转、合,成就一种“你中有我,我中有你”的布局性手法,这不禁令人联想到山城的大街小巷,跌宕错落中又不缺乏奇幻的瑰想。
阳光是琴键上的黑白键,随指一弹,便可让优雅入魂,灿若星辰。楼梯不仅仅是功能性的连接,它更像是一座抽象的艺术装置,童话般的错位视觉表现,配合柔和又不缺硬朗的黑白格纹表达,无外乎都是空间“美”的衍生与外化。
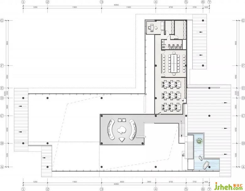
2楼VIP区素简无华,像是这片城市中绿野仙踪般的存在。人们安坐在于掩映的光隙之间,借由三分通透,三分安宁,让沁润心灵的情绪跃然开来。


项目落址于重庆,望南山而建,与水为邻。我们将重庆这座城市的形态——“山”为项目赋形,模糊商业与人文的空间界限,造就一处纯粹的「白华之境」,使空间承载的不单单是功能性,更多的是关于精神容器的探寻。

