项目坐标 /深圳市皇庭世纪
项目类型 / 私宅
项目面积 /41㎡
户型/1室1厅1卫
业主/严女士
设计时间 / 2020.05
拍摄时间 / 2021.1
设计机构 / 木子仁设计
施工/深圳众仁装饰设计
软装 / 木子仁设计
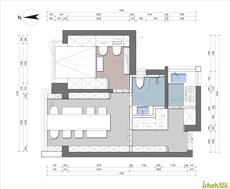
户型图
主要居住人口:一对小夫妻,一只喵,客厅主要是工作和接待,希望两个人有各自的空间,随时可以躺下去有舒适的状态。
我们每年会尝试一个小户型,和业主充分沟通之后形成最终的平面,每个人的气质都很不同,在每次的接触去捕捉这些点,再根据现场的状态,比如光和风的方向,跟着功能顺势而为的去打造形体。
这次室内设计师打破传统,营造了一个针对当代年轻人生活的方案,保证储物的情况下,去繁从简,只要住在城市里,家里就不需要具备所有功能,可以从城市中去补足,比如家里不能放很多书,就到旁边的图书馆去阅读,比如说家里冰箱很小,那就每天出门买菜,住在城市里,每天都可以感受到城市的变化。
玄关
(图为从入户门看向餐厅)
入户有个全身镜,替代了传统衣柜里的镜子,拖鞋位在鞋柜底部,中厨延伸出来是西厨的台面,地柜是电器柜,放置洗衣机、烘干机,烤箱。大部分小户型没有晾衣服的条件,烘干机也被越来越多年轻人接受。
客餐厅
(图为从入户门看向餐厅)
客厅整个空间采用的是无主灯的形式来呈现光源氛围,木饰面天花增加了整个客厅的统一。
厨房
厨房石材采用同色系,室内设计师希望硬装的选材接近于大地色,一个家要把自然引进来,金属、木材、石材,水、土,人可以通过接触自然的材料而获得能量。


台面选用的岩板,它是天然石料及无机黏土经特殊工艺处理后真空高压压合而成,有轻薄、耐污、耐高温,耐冻,耐腐蚀,耐酸碱的特点。
客餐厅

在这个空间里,室内设计师柜门用了黑玻,既可以有视觉的延伸,方便拿取里面的物品,黑玻把物品的饱和度过滤掉,不会显得杂乱,天花和墙面材质是统一的木饰面,不分割空间,更加整体。

