欢迎光临聚设汇,装修找设计就上聚设汇!
   咨询电话:15602987227
登录    注册
聚设汇
首页 > 商业 > 湖边·罗兰湖茶空间设计

湖边·罗兰湖茶空间设计

在风合睦晨看来,如今我们不必从喝茶里喝出一番高深的哲学,而恰恰是对喝茶本身有了一种先验的彻悟,这让我们松弛下来,让茶空间设计得以建立直白的意愿,进而完成深入人心、有说服力的建筑。

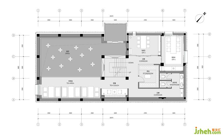
项目平面

1F及景观

2F

3F

更多茶空间设计请关注聚设汇装修平台:

北京风合睦晨空间装饰设计中心

设计收费:600 元/平             

擅长类型: 地产,会所,餐饮

在线咨询

扫描二维码关注我们的微信

深圳市聚设汇文化传媒有限公司
主编热线:15602987227
总部:深圳市罗湖区梨园路128号宝能汽车大楼416单元
佛山、东莞、成都、重庆、福州、厦门、南昌、武汉、
杭州、苏州、温州、郑州、长春、沈阳、贵阳、柳州、
哈尔滨、九江等城市设立办事处
© 2017-2021 Jsheh.com 版权所有 粤ICP备17079093号
展开
回到顶部