欢迎光临聚设汇,装修找设计就上聚设汇!
   咨询电话:15602987227
登录    注册
聚设汇
首页 > 商业 > 流动的像素风景

流动的像素风景

起伏的立方体构筑的虚拟意象山体曲线与窗外现实世界的山体曲线形成潜在的对应;而起伏的立方体构筑的意象山体曲线又与人们的心绪和生命曲线形成潜在的对应;三者彼此虚实呼应,意在有无之间、意在远近之间,意在似与不似之间。

心有所主,则山水有形。原木材质的运用带给人们心灵上得以抚慰的真切感受,畅游于现实与意象山水之间,整个公共属性的空间如同一个记忆的容器,收纳着流转不定的光阴,收纳着岁月不居的时节,也收纳着造物主赐予我们的那份美好、真诚与纯净。

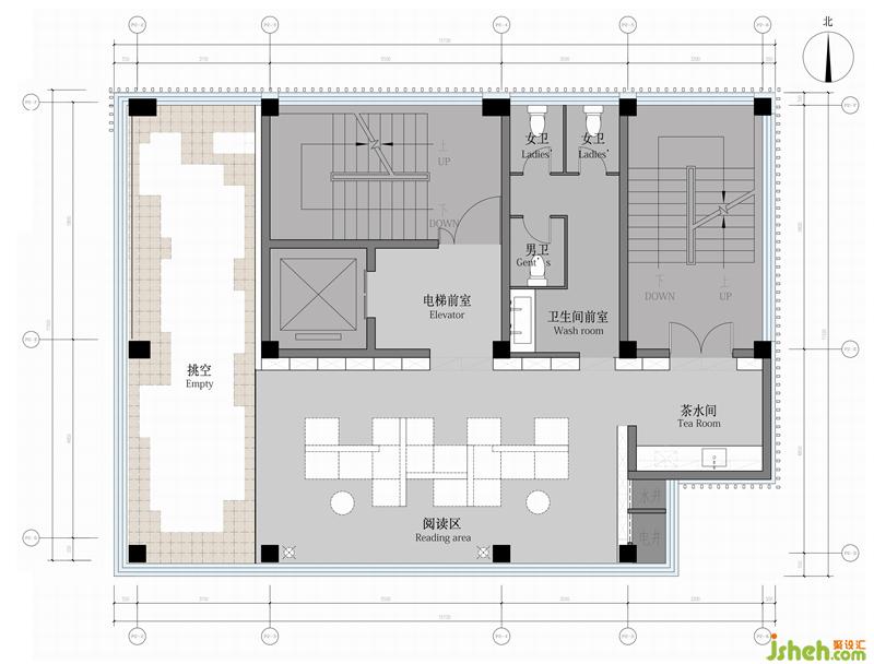
▲一层平面图

▲二层平面图

更多文化生活馆装修设计请关注聚设汇装修平台:

北京风合睦晨空间装饰设计中心

设计收费:600 元/平             

擅长类型: 地产,会所,餐饮

在线咨询

扫描二维码关注我们的微信

深圳市聚设汇文化传媒有限公司
主编热线:15602987227
总部:深圳市罗湖区梨园路128号宝能汽车大楼416单元
佛山、东莞、成都、重庆、福州、厦门、南昌、武汉、
杭州、苏州、温州、郑州、长春、沈阳、贵阳、柳州、
哈尔滨、九江等城市设立办事处
© 2017-2021 Jsheh.com 版权所有 粤ICP备17079093号
展开
回到顶部