整座建筑的外围为大面积的水景环绕,设计师顺势也将水的概念自然地导入室内,枯山水和静水水钵的运用为空间带来“溪花与禅意,相对亦忘言”的空灵意境。清澈的流水散发出空空声响,于清静处浸润人心。
在入口门庭处与主要的深度洽谈区间虚隐意象。设计师使用这样的当代艺术视觉元素探寻中国传统的精神文脉,延续着以意取象之间,设计师特别设计了一面大型的艺术装置隔断,隔断由密集的炭烧木条以纵向的排列组合横向延展而成,进一步的传达出“竹密岂妨流水过”及“四面竹树环合”的空间虚隐意象。

设计师使用这样的当代艺术视觉元素探寻中国传统的精神文脉,延续着以意取象的艺术设计手法,释放出特有的灵性与诗情,于无形中满足和激发了我们内心积存已久的审美文化需求以及情感共鸣。将空间感知与自然灵性、传统感悟与当代审美巧妙融合,于传承中步入升华。

在完成功能需求的同时,售楼处设计师将可见的有形空间转化为无形的精神与情感痕迹,在朴素与静谧中体会独特的诗情画意。打破传统与现代、梦想与现实的边界,将美学与生活合而为一。为生活在忙碌、嘈杂的现代都市里的人们提供了一处虚实相生、繁简相宜,能够回归自然与人性精神本位,再次找回自身真正内在情性的灵性空间。让空间与自然融合,旧的文脉与新的元素共生,再加入现代的构思构建出亲切闲适、清静自性,让生命与灵魂得以沟通的艺术空间。
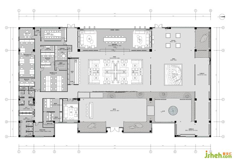
平面图
更多售楼处设计请关注: