欢迎光临聚设汇,装修找设计就上聚设汇!
   咨询电话:15602987227
登录    注册
聚设汇
首页 > 商业 > 遇东岚

遇东岚

项目名称:遇东岚

楼盘名称:龙湖U城天街

项目所在城市:重庆市

项目完成日期:2019.6

项目面积:340㎡

项目总造价:50万

遇东岚-顾名思义重庆渝东南,整体设计风格必须以渝东南地区少数民族文化建筑等相融合。

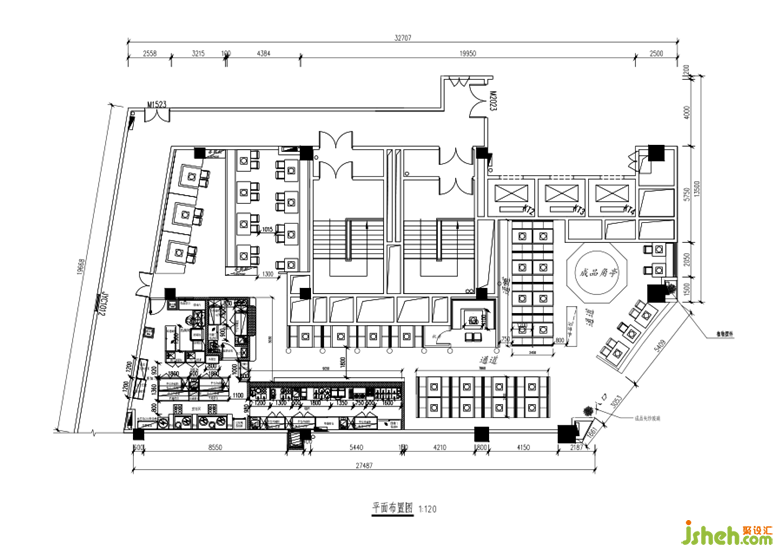
在如今餐饮业迅速发展的今天,餐饮店面的装修越来越走向特色化,高端化。但我认为一味的追求特色、高端,并不能为顾客带来更好的用餐体验,也不能辅助商家产生更高的效益。我们更着重于解决店面动线规划与特色主题餐饮文化相结合。

着眼于这样的思路,我们将340平的店铺分为3个区,图纸上以弯管造型、八角亭、特色发光膜为一体A区呈现在我们眼前,让用餐的顾客在每一个角度都能看到一个特色的景。细节上,发光膜的素材选择,引用了少数民族特色建筑,渝东南地区群山起伏的地形,同时加入遇东岚5大招牌菜系。让我们在享受美食的同时,置身于渝东南地区的美景中。

餐厅设计以一排12米长的连廊及9米长的明档为主景的B区,将遇东岚的菜名罗列在明档之上,以原木色实木为基础,连绵起伏的立体造型尤为显眼。连廊配上小青瓦,更凸显 出少数民族地区特有的文化建筑。

餐厅设计

我们用3D印染的山水叠帘,错落有致的挂在D区的两排卡座之间,保证了客户的用餐私密性,墙上立体造型采用了筲箕加木牌菜品的形式。进一步点缀其主题特色。

餐厅设计

餐厅设计

餐厅设计

重庆古木装饰工程有限公司

设计收费:面议 元/平             

擅长类型: 餐饮,商业

在线咨询

扫描二维码关注我们的微信

深圳市聚设汇文化传媒有限公司
主编热线:15602987227
总部:深圳市罗湖区梨园路128号宝能汽车大楼416单元
佛山、东莞、成都、重庆、福州、厦门、南昌、武汉、
杭州、苏州、温州、郑州、长春、沈阳、贵阳、柳州、
哈尔滨、九江等城市设立办事处
© 2017-2021 Jsheh.com 版权所有 粤ICP备17079093号
展开
回到顶部