
洽谈区内利用拱廊营造出高挑的建筑感,让光线以柔和的方式进入室内,墙面上泛灰,纹理浅暗的墙纸模拟出古建筑墙身壁画的斑驳质感。

拱廊亦可分隔空间,既能分享自然光,也使其相互独立。大面积的黑白草稿墙纸,让人不禁联想到文艺复兴时期大师达·芬奇的珍贵手稿,象征着艺术和科学的融合。
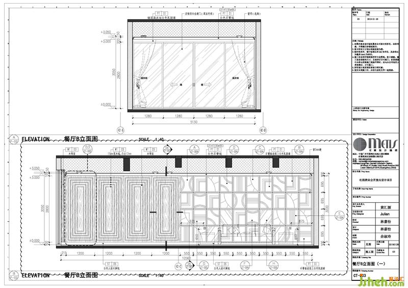
在餐厅里,古典建筑内繁复的装饰花纹被简化,以现代感的几何图案进行重叠组合,致敬现代建筑大师弗兰克·赖特。会所设计

将带有东方意味的人物风景画安插在墙面拱廊里,产生一种坐在窗边看园景的错觉,让空间变得立体生动。
在包含会议,接待,就餐三个功能空间为一体的会晤接待室,墙面上内凹造型的设计改变了原本墙体的厚重单调,以光影造型营造端庄的序列感和层次感。房间的主题来自于拉斐尔著名的画作【雅典学院】,设计寄希望于空间,望各行业的精英人士能在此交流探讨,碰撞出新的创意火花。会所设计





