水吧区让空间清雅静谧,吧台上方的灯具采用玻璃金属造型,现代感的设计加上皮革座椅,在东方氛围的基础上增添了些许现代气质。
The water bar area makes the space quiet and elegant. The lamps above the bar are made of glass and metal. The modern design and leather seats add a bit of modern temperament based on the Oriental atmosphere.


屹立在每组沙发旁的落地灯像古代的宫灯一样,富有文化韵味和仪式感。
The floor lamps standing beside each group of sofas are like ancient palace lamps, full of cultural charm and sense of ritual.
清风伴一缕茗香 回味悠长,明月照一尊觥影 心绪清远,搭以一株单峭花枝,颇有意境之美.
The refreshing wind accompanied by a long aftertaste of tea, the bright moon illuminated the clear mood of one gong shadow, set up a single wild flower branch, which has the beauty of artistic conception.
土地与人文相融,岁月与时代的相遇,似水流年下,延绵时光深意。
Land and humanity are in harmony, time and time meet, like water under the time, lingering deep meaning of time.
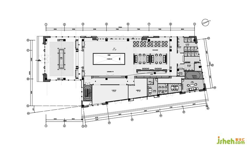
平面图
The floor plan
更多售楼处设计请关注聚设汇装修平台:
