欢迎光临聚设汇,装修找设计就上聚设汇!
   咨询电话:15602987227
登录    注册
聚设汇
首页 > 商业 > 美雅韵派城市隐居概念店设计 | 窥隐之间,得见生活

美雅韵派城市隐居概念店设计 | 窥隐之间,得见生活

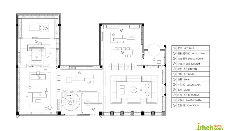
卧室与衣帽间虚实相映,环形动线串联了内部空间,同时提升了空间体验,完善了空间功能的合理性和关联性。空间简而不凡,生活的秩序感油然而生。

结语

空间的设计就应不沉沦于普通,不迷失于奢华,优化空间中的动线和布局,概念店设计打造更好的视觉色彩体验,让彼此在喧嚣的都市生活中给予一个氛围之家。行云流水的几何线条被折叠、翻转于空间中,模糊了区域边界和认知,构建出更多元的体验场景。

更多概念店设计请关注聚设汇装修设计:

香韵典故设计工作室

设计收费:300 元/平             

擅长类型: 家居

在线咨询

扫描二维码关注我们的微信

深圳市聚设汇文化传媒有限公司
主编热线:15602987227
总部:深圳市罗湖区梨园路128号宝能汽车大楼416单元
佛山、东莞、成都、重庆、福州、厦门、南昌、武汉、
杭州、苏州、温州、郑州、长春、沈阳、贵阳、柳州、
哈尔滨、九江等城市设立办事处
© 2017-2021 Jsheh.com 版权所有 粤ICP备17079093号
展开
回到顶部