
卫生间 ▲

影音室▲
会所设计探索一种未来的形态构想,虚幻与现实的错乱,探讨一种变化的可能,关于空间机能顺应时代的进阶,科技感与二次元文化构造一种不完整的往复,形成独立的裂变,去完成自我的突破。
Explore a kind of future morphological conception, the confusion of illusion and reality, and explore the possibility of change, about the advancement of space function to adapt to the times, the incomplete reciprocation of the sense of science and technology and the two-dimensional cultural structure, forming an independent fission. Complete self-breakthrough.

包厢▲
模糊空间的界限镜面不锈钢天花通过镜面与光的反射在视觉上达到了空间尺度的延展也让沉闷的工作情绪在此处得到逆转。属性上的模糊,让神秘成为了探索的欲望
Blurring the boundaries of space The mirror surface stainless steel ceiling visually achieves the extension of the spatial scale through the reflection of the mirror surface and light, and also allows the dull working mood to be reversed here. The ambiguity of attributes makes mystery a desire to explore


空间的一韵一趣,都与当地文脉、气质相契合,不仅造就了空间的艺术特质,也传递出理想的人居哲学。
The rhyme and interest of the space are consistent with the local context and temperament, which not only creates the artistic characteristics of the space, but also conveys the ideal philosophy of human settlement
Plan 爆炸图 ▲
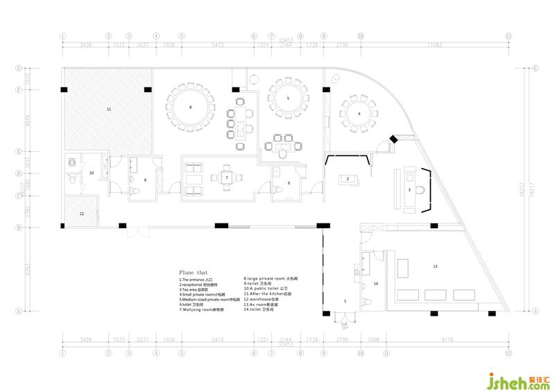
Plan 平面方案▲
更多深圳会所设计请关注