欢迎光临聚设汇,装修找设计就上聚设汇!
   咨询电话:15602987227
登录    注册
聚设汇
首页 > 商业 > 乙丙建设办公室设计

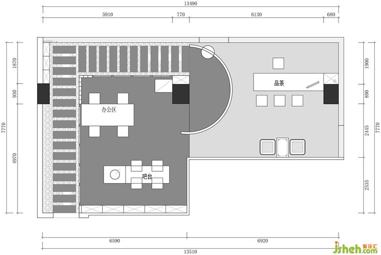
乙丙建设办公室设计

办公室设计流动的光影,真实存在但又不可触碰,在时间性与空间性的交织下,连绵形成独特的场景影像

The flowing light and shadow, real but untouchable, form a unique scene image under the intertexture of time and space.

更多办公室设计请关注聚设汇装修平台:

甲乙设计

设计收费:200 元/平             

擅长类型: 豪宅私定、别墅会所、整体软装、办公场所设计

在线咨询

扫描二维码关注我们的微信

深圳市聚设汇文化传媒有限公司
主编热线:15602987227
总部:深圳市罗湖区梨园路128号宝能汽车大楼416单元
佛山、东莞、成都、重庆、福州、厦门、南昌、武汉、
杭州、苏州、温州、郑州、长春、沈阳、贵阳、柳州、
哈尔滨、九江等城市设立办事处
© 2017-2021 Jsheh.com 版权所有 粤ICP备17079093号
展开
回到顶部