设计丨Designer:鹿可可
机构丨Company:深圳市知行合一设计有限公司
摄影丨Photographer:陈庆纲、知行合一
业主丨Homeowner:S姐姐
面积丨Square Meters:65平米
地址丨Location:深圳田厦翡翠明珠家居设计
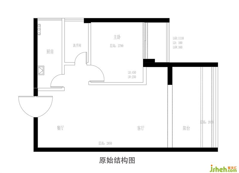
S姐姐的家原户型是一房一厅,家里几乎没有承重墙可以实现很多大胆的设计想法!经常出差日本的她住酒店get到了很多日式收纳精髓,所以对新家在收纳上划了重点,他们两夫妻的生活方式很特别,打破了传统,客厅不需要大沙发,以原木大书桌为中心,吃饭,办公,看书,统统在这张木桌上实现。
S姐姐是通过朋友介绍与鹿可可团队认识的,当时她电话联系我们的时候我们正在贵州出差,回来后由于当时工作室正在重新装修就相约在福田的一家咖啡厅面谈确定了设计合作。
二手房设计改造,把一房一厅爆改成了三房一厅,同时还满足她要的大岛台吼~
S姐姐家的设计需求:
1.空间允许的情况下需要三个卧室,一个是以后的儿童房。
2.多多的收纳储物空间。
3.想要两个卫生间。
4.开放式厨房,大岛台。
5.客厅需要看投影,暗装电动幕布。
6.保留阳台,平时喜欢吃火锅,但不喜满屋飘香,可去阳台吃。

入门就是客厅,没有玄关,鞋柜与厨房的储物高柜一起定制的。鞋柜的黄金比例就是做到顶,留中空放置出门常用品,底部留空15-20cm放置居家拖鞋。
不局限于某种风格,把客户喜欢的元素回炉重造,设计成一种只属于她的家。家居设计整屋以大白墙为基调,结合原木色系的柜子与家具,空间温馨简约,采光区只有阳台那面落地窗,中间的主卧利用高透光的玻璃隔起来,不影响客厅采光。

客厅安装了隐藏式电动幕布盒,一开始就预留了电位。
看电影的懒人沙发,S姐姐说疫情期间可没少坐在这个位置看电影,当时家里的娱乐就靠投影仪了,晚上关灯后打开投影仪投射到天花上可以躺在主卧床上数星星,很惬意。