

私宴厅,空间一如既往的纯净与通透。光线透过玻璃幕墙与室内材质与织物展现出光影的魅力。柔和的色调延伸光的介质,提升整体的简洁与雅致。



顺德悦府示范区设计抽象的陈设艺术品与定制的艺术装置,勾勒一个形象饱满的空间构图,清晰表达出一种力量的平衡,同时在力量中引入温情的照明,流露出空间静谧的诗意,宛如绘画中的留白,营造无声胜有声的意蕴。
现代化的浪潮下,无论是曾经的村庄还是熟悉的城市,都和眼前的截然不同。回忆告诉我们:应当怀念;未来又指引我们:快步向前。
△空间分析图
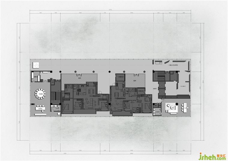
△一层平面图
△三层平面图
更多顺德悦府示范区设计请关注聚设汇装修平台: