项目名称:徐徐
空间设计:李瀛/璞珥空间设计
座落位置:成都
使用面积 : 220平米
房屋位置 : 四川成都
装修花费 : 100万元
说在前面
本案屋主是对新婚夫妇,女主与友人共同经营一间咖啡店,男主空闲时常去搬砖。记得每次到咖啡店的体验感很强,能深深感受到两位女生对手作食物独特的热爱,亲切的问候,真实的笑容,总能传递出“慢下来,享受当下”的人生态度。当时的我好想自家社区旁也能有这样一间给人温暖感的咖啡店。 夫妇俩对待生活是认真积极的,希望家是一个舒缓与平静的地方,家装效果设计且要有质感的,在家时可以做一切喜欢的事,弹琴/拼图/游戏/聚会/做美味食物......
ROOM SHOW
空间展示
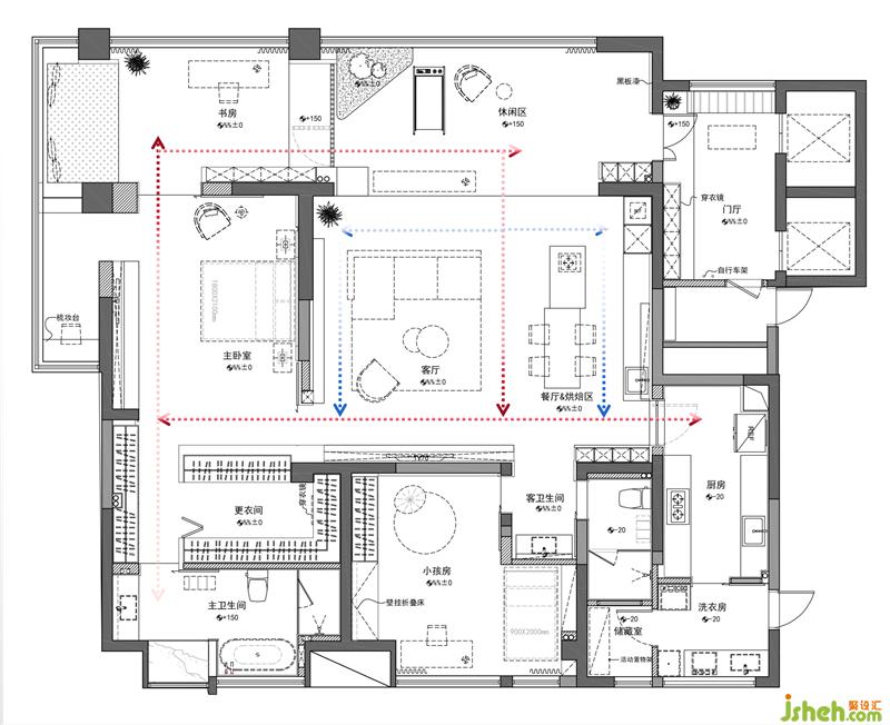
- 户型图 -
- 玄关 -
入户门与鞋柜颜色统一,保持空间整体性与延伸感。 #鞋柜开架与柜门组合,满足换鞋及收纳。 #黑板墙记录生活点滴。 #木格栅天花灯光设计,为回家增添小小仪式感。
- 客厅 -
烘焙区与餐桌相连,烘焙的同时满足友人小聚,静谧的灰色与原木色搭配,体现高级感的同时融入温暖居家气息。

通往中厨的一道夹丝玻璃门,门片到顶的尺寸,通透且灵动。
客厅/烘焙区/休闲区相结合组成公共区域,让每个人在做自己事情的同时可以实现互动性。
两侧水泥艺术漆围合出客厅空间感,沙发后“L”型悬挑板,制造出空间小趣味,木制格栅门是通往书房的入口。
慵懒的躺在吊床上看书,随性且自在。
- 厨房 -
中式厨房的家装效果设计运用白与灰的基调色,赋予干净清爽的空间表情。
- 卧室 -
卧室电视墙与客厅设计手法呼应。
