于整体黑白灰的艺术展厅基调之上,空间融入自然森林意象,搭配色彩跳跃的家具和艺术品,强化和谐生态的体验感。宽阔通透的疆域,兼具冥思遐想和自由交流的多维度空间中,时光自然流动,思想亦自在游弋。
Based on the overall tone of the black, white and gray art exhibition hall, the space incorporates the image of natural forests, with furniture and artworks that jump in color, enhancing the sense of harmonious ecological experience. The wide and transparent territory creates a multi-dimensional space with meditation, reverie and free communication, allowing thoughts to roam freely and gaining resonance that reaches the depths of the soul.

沙盘上方回形状的吊灯,亦是绽放的花朵艺术装置,诉说着生活的缱绻与诗意。优美的曲线,暖黄的灯光,柔和了空间的硬质轮廓,增添了整体的温馨氛围。户型模型如珍宝般被妥帖安置于充满现代精致质感的展柜中,售楼处设计庄重而神秘,唤启人们对于尊贵品质生活的期待。
The chandelier in the shape of a back above the sand table is also an art installation of blooming flowers, telling the lingering and poetic flavor of life. The graceful curves and warm yellow lights soften the hard contours of the space and add to the overall warm atmosphere. The house type model is appropriately placed in a showcase full of modern and exquisite texture like a treasure, solemn and mysterious, and arouses people's expectations for a noble quality life.
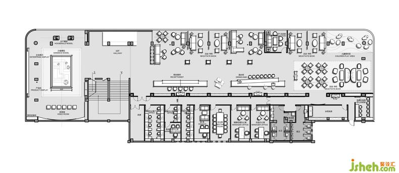
在原建筑有多道柱子分割空间的限定条件下,设计别出心裁,利用柱子和家具模组划分区域,在营造阵列感的同时,诠释开放性空间的构思策略。
Under the limited conditions that the original building had multiple pillars to divide the space, the design was ingenious.It uses columns and furniture modules to divide the area, while creating a sense of array and interpreting the conception strategy of open space.
在艺术玻璃隔断的烘托下,空间虚实交叠,明暗互动,平衡了现代性与艺术性。纵横捭阖的场景关系,构就一步一景的自然之旅。悠游其中,赏心乐事,细细探索和品味内在的丰盈。
Under the background of the artistic glass partition, the space overlaps the virtual reality and the light and shade interact, which balances modernity and artistry. The vertical and horizontal relationship between scenes constitutes a natural journey step by step. Wander around, explore and taste the inner abundance.
时尚的至臻境界,是对潮流本质和真义的萃取且理智而熟练的演绎。售楼处设计开放前卫而温馨内敛的空间,以质朴而奢华的韵致,沉静而精致的美感,将美好的时光定格为永恒,镌刻着人与城市共成长的生活向往。
The ultimate state of fashion is a sensible and skilled interpretation of the essence and true meaning of the trend. The open, avant-garde and warm and introverted space, with simple and luxurious charm, calm and exquisite beauty, set the good time as eternity, engraving the longing for the life of people and the city growing together.
