
△茶艺室
现代简洁明快的贵宾接待室,便于政界领导团接待。迎客松选用鲜活的绿植,为空间添加生机。接待椅运用钻石切合工艺,彰显尊贵与奢华。
△贵宾接待室
VIP洽谈区在结合岭南文化和珠宝文化的基础上,更注重自然意境的营造。洽谈区与户外露台一墙之隔,大面落地玻璃将户外的景观延伸至室内,精致而古朴的艺术品透过玻璃装饰柜清晰地呈现于眼前,巨幅黑白装饰画上一棵参天大树与室内外的绿植相互映合,虚实相间,让空间更加意境幽远。艺术、自然与空间在此完美融为一体。



△VIP洽谈区
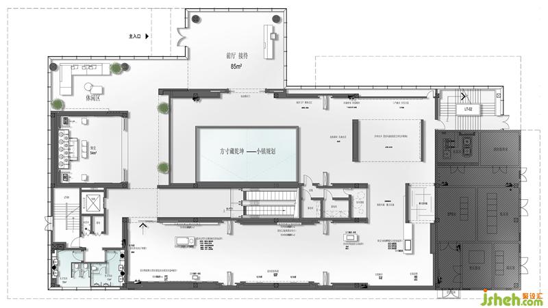
图纸呈现
△一层平面布置图
△一层平面布置图
更多展示中心设计资讯请关注聚设汇装修平台: