项目地址 / 杭州 · 私宅
Location / House · Hangzhou
毕业时间 / 2021 . 05
Finish Time / May. 2021
设计团队 / 力设计
Design Team / Li Design
摄影 / 林峰
Photographer / Lin Feng
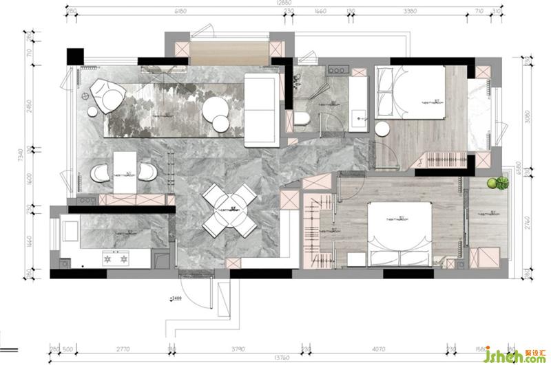
户型图
Plan
平面布置图
关于设计:房子是三房的边套户型,经过设计师的推荐,关于原客厅旁边的房间两面采光的问题,客户选择了弱化房间,把书房融入客厅,杭州装修设计这样客厅配置和体量远远超过了该户型给人原本的相像,同时大大提高了采光效果,也符合当下业主的生活方式。
客厅
Living room








