项目地址 / 宁波· 私宅
毕业时间 / 2020 . 11
设计团队 / 力设计

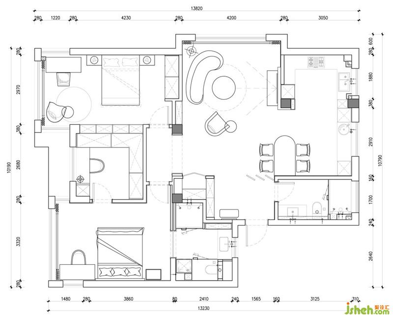
平面布置图
关于设计:这是一位特殊的客户,松爷自身是某装修平台的大博主,众多关注公司中和力相遇、相知,一路看着力设计成长、成熟和不停的蜕变升华,终于要请力对自己的房子“下手”啦~
本一览无遗的客厅在分散式长虹玻璃的修饰下,朦胧而婉转,既丰富了视觉感受,宁波装修设计又增加玄关的仪式感。





穿过玄关,以白色+木色为主调的客厅简单而随性,自由而惬意,圆润的沙发和茶几柔和了空间四面的棱角,一抹跳跃的蓝给人带来一种宁静高贵的视觉感受。

