欢迎光临聚设汇,装修找设计就上聚设汇!
   咨询电话:15602987227
登录    注册
聚设汇
首页 > 商业 > 塑造线条、色彩律动的当代美学体验中心设计

塑造线条、色彩律动的当代美学体验中心设计

茶室同样延续整个体验中心的色彩气质美学。体验中心设计对空间的功能拆分解构,不需要过多的装饰与点缀,星空边际的艺术画作勾勒出优雅的空间质感,呈现出城市中生活的那份宁静。

线条的本身就是一种艺术,而将艺术细致化并在空间所用,则是一种新的思想哲学,使之在生活中的运用达到另一种层次的审美愉悦,成为一种超然的视觉享受。

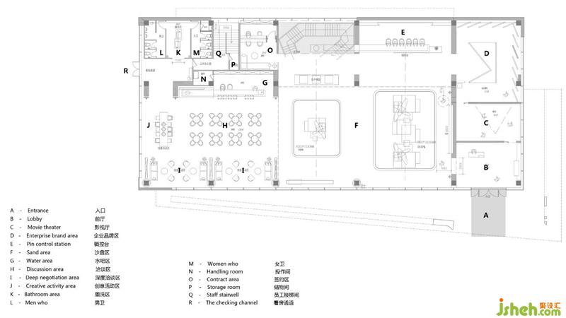
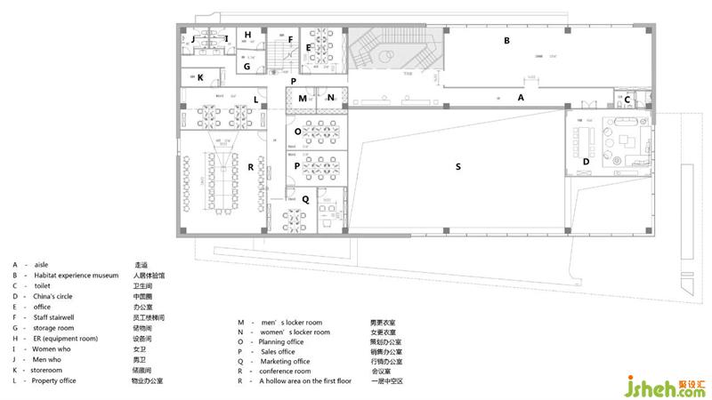
轴结构图

更多体验中心设计请关注

深圳市零次方空间设计有限公司

设计收费:1000 元/平             

擅长类型: 售楼处、样板房

在线咨询

扫描二维码关注我们的微信

深圳市聚设汇文化传媒有限公司
主编热线:15602987227
总部:深圳市罗湖区梨园路128号宝能汽车大楼416单元
佛山、东莞、成都、重庆、福州、厦门、南昌、武汉、
杭州、苏州、温州、郑州、长春、沈阳、贵阳、柳州、
哈尔滨、九江等城市设立办事处
© 2017-2021 Jsheh.com 版权所有 粤ICP备17079093号
展开
回到顶部