

远看成岭侧看成峰,设计师对于景物的大小角度和距离构图也要了然于胸。透过灯帘,书的大小仿佛伸手可得,就想席地而坐,添香煮茶,徜徉书海。
As far as the ridge is concerned, the designer should be aware of the size, Angle and distance of the scenery. Through the lamp curtain, the size of the book as if hand can get, want to sit on the ground, add sweet make tea, roam the sea of books.

影因光而生,随光而逝。顶部和墙体采用木质条形隔板,将一盏孤灯分割成数个阴暗交替的条形画面,售楼处设计拓展空间层次感和纵深。而每格书柜采用单个从下往上的灯光,形成视觉焦点,从而总体画面主次分明。
A shadow is born of light and goes with it. The top and the wall are made of wooden stripboards, dividing a single lamp into several dark alternate stripboards, which expand the spatial hierarchy and depth. And each case bookcase USES the lamplight from bottom to top individually, form visual focus, thereby overall picture is primary and secondary distinct.


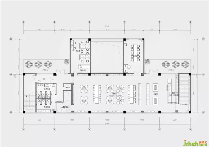
售楼处设计本着实用、舒适的原则,二楼图书馆的空间采用现代设计风格,线条简约硬朗,区域划分整齐有序。浅色系布局,原木色桌面墙体,米色地板,易于缓解眼部疲劳,精神放松。
In line with the principle of practicality and comfort, the space on the second floor of the library adopts the modern design style, with simple and sturdy lines and orderly division of areas. Light color layout, original wood desktop wall, beige floor, easy to relieve eye fatigue, mental relaxation.





更多售楼处设计请关注聚设汇装修平台: