欢迎光临聚设汇,装修找设计就上聚设汇!
   咨询电话:15602987227
登录    注册
聚设汇
首页 > 商业 > 仙人掌艺术廊

仙人掌艺术廊

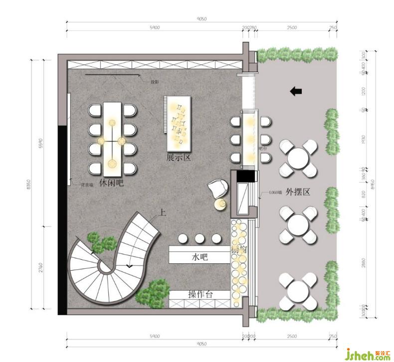
二层主要是沙龙区域和咖啡区域

沙龙区和咖啡区可分可合

多功能可变空间

据说

人和美好的邂逅

和人与人之间的邂逅很相似

拥有一件美好事物

就跟与一个谈得来的人相处一样

自在又舒服

既然如此

不妨去

“仙人掌艺术廊”

邂逅一下真正的美好事物吧

深圳市东方营造设计有限公司创始人兼设计总监

设计收费:600 元/平             

擅长类型: 民宿、办公、住宅、展厅

在线咨询

扫描二维码关注我们的微信

深圳市聚设汇文化传媒有限公司
主编热线:15602987227
总部:深圳市罗湖区梨园路128号宝能汽车大楼416单元
佛山、东莞、成都、重庆、福州、厦门、南昌、武汉、
杭州、苏州、温州、郑州、长春、沈阳、贵阳、柳州、
哈尔滨、九江等城市设立办事处
© 2017-2021 Jsheh.com 版权所有 粤ICP备17079093号
展开
回到顶部