设计公司:蓝鲸设计
地址 | 湖北武汉金鑫国际
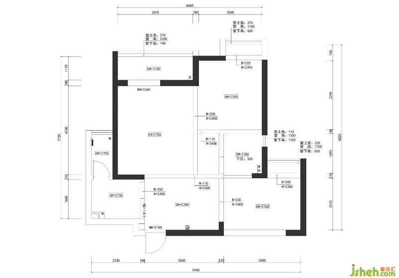
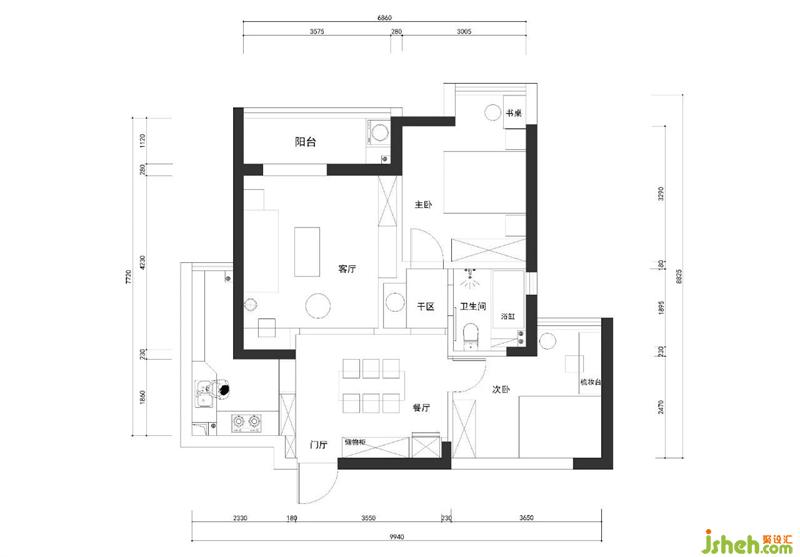
面积 | 78㎡
业主是一对年轻夫妻,都是理工科学霸,但是第一次聊起来就发现,女业主其实是个很浪漫的人,对家里的期待是文艺而又温馨的,至于具体风格并不拘束,不断地沟通之后发现业主更加偏好复古的感觉,而且在整个设计过程中非常在意功能上的满足,比如关心柜内分隔超过柜子的颜色和样子,这一点比较有理工学霸的feel,所以平面确定后具体的深化和软装搭配的部分,武汉家居设计师的意见则通过率比较高。

1. 推掉了厨房门口的墙,做了一排鞋柜,薄的的地方斜插,厚一点的地方正常放,可以收纳不少鞋子
2. 客餐厅之间的墙整个往客厅推,换来的价值就是餐厅多了一整排储物柜的同时还能放下六人位餐桌,客厅借着凹进去的墙体做了书柜和书桌,满足学霸夫妻学习和工作的需要,因为牺牲的是客厅的活动区域,所以在储物功能上并没有扣分
3. 卫生间则是做了干湿分离,因为业主不希望镜子面对主卧门,所以最终采用了与电视柜凹凸摆放的方式,可以做个正常尺寸的洗脸台,并且卫生间还能放下浴缸
墨绿色的半墙设计增加了空间的延伸感,配上棕色的沙发立马提升了复古感。武汉家居设计因为墙体有凹凸,电视柜是现场做的,喷了温暖的奶茶色,显得惬意而温暖。沙发背后的挂画出自故我今我。

沙发是仿皮质的布艺,业主说不排除家里偶尔有客人要睡沙发,所以不希望用真皮沙发,会有点冰凉,在软装的选择上,兼顾颜值的同时还是要尊重业主日常生活的实用需求。单支的马醉木给深秋带来了一线生机,跟温暖的灯光相呼应,更加惬意又赏心悦目。边几来自二黑木作。
从餐厅看客厅。千鸟格的抱枕增加复古感,毛绒抱枕增加材质的丰富性,随意得摆在沙发上,让人想懒洋洋地深躺在沙发上,再也不问世事。

门厅做了一排餐边柜,把冰箱和换鞋凳也收纳进来,柜内做了酒插,方便备点好酒招待三两好友,柜外用了复古天地锁,小小细节也能提升空间质感。武汉家居设计地面是经典黑白小砖拼花,配上Thonet的复刻藤编椅子,和PH5吊灯,文艺浪漫的感觉油然而生。
墨绿色的橱柜配金色的拉手,厨房这种烟火气重的地方也要注重颜值。高低橱柜满足不同功能所需的不同高度。

浴缸也是女业主心心念念的,78平的户型,在通过干区外置之后,得以实现了浴缸,武汉家居设计为了节省空间,门采用了折叠合金门,双面长虹玻璃保证了隐私又能轻微透光,颜值也能兼顾。卫生间内部使用了仿水磨石的砖,墙地砖统一,墙体上半部分和顶面统一刷了墨绿色的卫浴漆,呼应了客厅,又避免了墙砖、地砖、顶面三种材质而显得卫生间更加狭小杂乱。
主卧用了低饱和度的绿色,呼应客厅的主题色,进门右手是整排的衣柜,也运用了电视柜的奶茶色。梳妆台出自二黑木作,收纳能力强大。
更多武汉家居设计请关注