项目名称|前海东岸
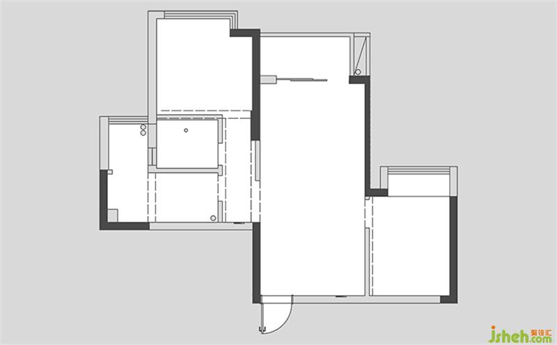
项目面积|72平方米
设计公司|懒猫创意空间设计有限公司
设计总监|懒猫
硬装设计|紫琦
软装设计|卫衣
完成时间|2018.11
摄 影|大冯、豌豆
南哥家是我们这个小区设计的第三套房子,别问我为啥前两套还没有发出来┑( ̄  ̄)┍(另外两位朋友交房较晚,现在也基本完成),初见南哥和爽姐就发现这是一个爱书的家庭,希望可以在家冥想、一家三口工作学习两不误,还有女儿喜欢的竖琴,当然也要照顾到爽姐希望家里温暖放松的心情~装修设计


▲厨房呢一定要大,这可是爽姐的战场,我们把卫生间的洗手台独立出来,厨房的空间延续到原本比较鸡肋的生活阳台,这样厨房就比原来大了一倍的面积,走道的位置又可以设计一组吧台,主卧的衣柜也可以变成现在的3.2米,榨干最后1㎡并使动线更加流畅。装修设计

客厅为无主灯设计,投影仪代替了不常使用的电视机,整面的收纳柜可以覆盖家庭的日常收纳。沙发背景墙的珊瑚粉色带着满满的活力气息,不粘腻,不惹眼,却能通过色彩和材质的搭配打造独一无二的感觉。装修设计
挂画正是女儿最爱的乐谱。装修设计
公共区域尽量开阔,通透的纱帘、多重照明、墙面的局部突出都是可以让空间看起来比较大的要点。
