
∆ 沙盘区
此处融入时间而产生相遇的美好,净空空间而包含诗意的境界,最后目光停留在上空。
∆ 沙盘区
那连结如金石之声的雕刻,最后划破当下的简单生活,带来未来的灿烂韵味。
∆ 品牌展示区
3. 金风玉露
∆ 果汁吧台
预期将来此处作为社区公共使用,建立起连接过去的自然记忆。人们以水果为链结,作为情感沟通的赠礼。
∆ 果汁吧台近景
以蔬果待友更是中国人的待客之道,吃着鲜果谈着生活中大小事,期待成为社区一种集体记忆。苏州售楼处设计用果饮打造男女老少的健康生活,希望以设计创造一处开启对话的场域。
∆ 公共洽谈区
∆ 公共洽谈区近景
洽谈区以玫瑰金雾面书架,金色方块的源果汁吧台,用一抹亮色,围塑出同黄金屋般的迷人气息,提供便于人们阅读,休憩与交流。
∆ VIP室
阔合在设计上延续整体空间明亮与开阔的属性,并安排不同区域,兼具多功能的运用可能。整个展厅动态的光影时序,伴随自然在流动,呈现出似是有意、又仿佛是无序的动态美,宽阔而又宁静的氛围,记录着时间与空间的交织和互动,人们徜徉其间,忘情于处。

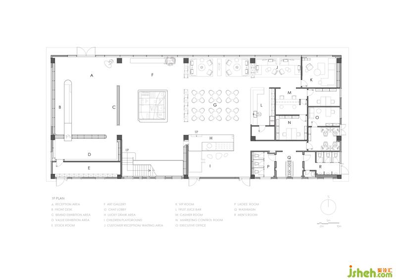
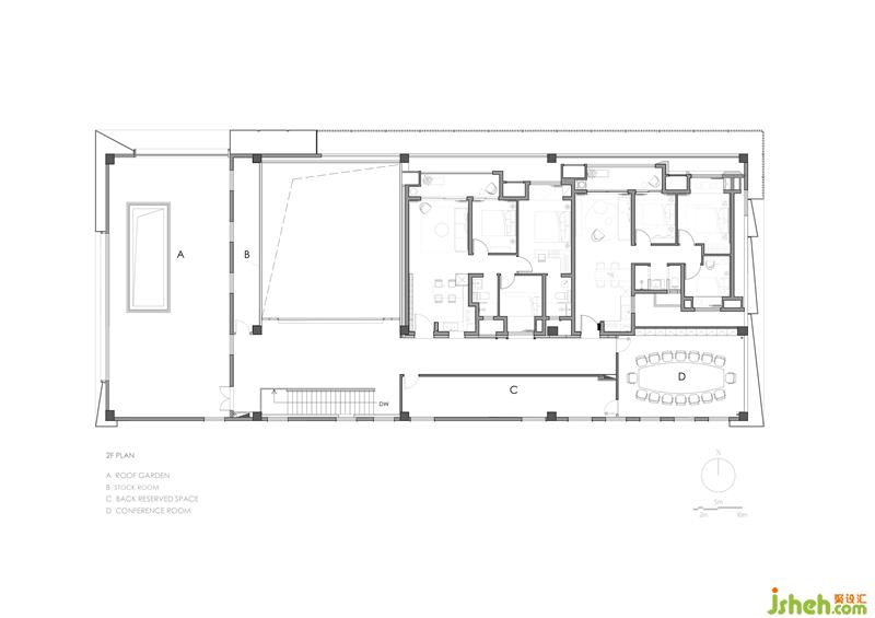
∆ 平面图
更多苏州售楼处设计请关注聚设汇装修平台: