欢迎光临聚设汇,装修找设计就上聚设汇!
   咨询电话:15602987227
登录    注册
聚设汇
首页 > 家装 > 光阴缓缓:高级不做作的复古感,混搭的美

光阴缓缓:高级不做作的复古感,混搭的美

案例地点 | 大石桥2号

建筑面积 | 80 平米

案例风格 | 复古混搭

设计机构 | 可米设计

主案设计 | 缪婧

设计理念:

希望每个作品都能做到CAP的协调平衡

Comfortable  舒适 设计都是为人服务的,舒适是设计最重要的一个核心 

Aesthetics   美观 用科学的空间思维,合理颜色的组合实现美的统一

Practicality   功能 追求设计本身,好的设计需要好的功能

说在前面

与其说“复古”是一种风格,

还不如说“复古”是一种追求美的态度。

并不是旧时代的一切都等于复古,

在复古的背后,

其实是被多个时代接受和挑选过的共同美感。

本案将多种复古元素融入现代感的家中,碰撞出高雅的气质范儿,带来历久弥新的美丽。以酒红色作为主线,虽然它不是第一眼打动人的颜色,但在红色系的所有颜色里面,它的气质更像是“疏影横斜水清浅”,以波澜不惊的姿态将一种气质渗入到整个屋子之中。

这是位于南京玄武区的一套学区房,屋主是幸福的三口之家,为了孩子的教育放弃了原有的大房子,换了这套老屋子。与他们相识是因为看到我们发布的同小区同户型的实景案例,也正是他们所喜欢的感觉,所以就联系到我们想去那家实地看下。室内设计师

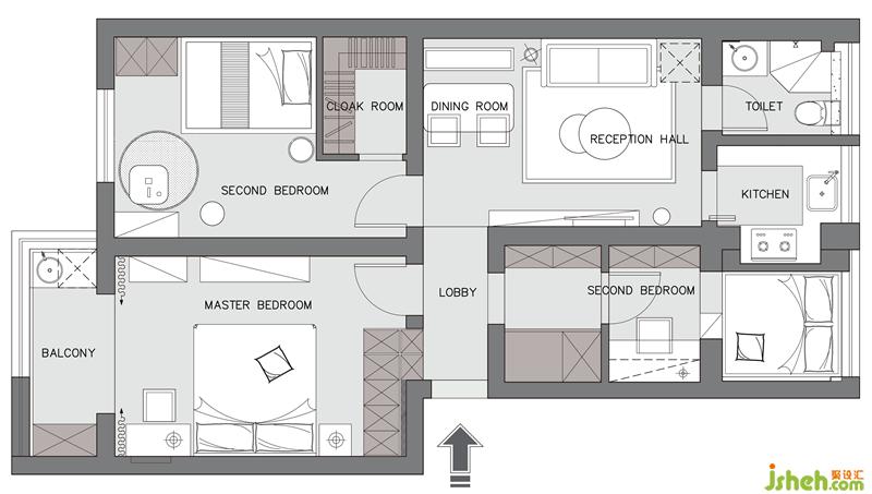
户型图

该户型为3室1厅1厨2卫,建造年代为1995年,房龄比较老,墙体不好做过多改造。

屋主需求:

1.由于是三口之家,房间分配上需要主卧、儿童房和书房

2.客厅与餐厅的功能需要保证

3.尽可能多的增加收纳空间.室内设计师

我们进行了如下改造:

1.在一进门的左手,我们拆掉了80公分的墙,做了从地到顶的鞋柜,与主卧的衣柜背靠背,增加了鞋子的收纳空间

2.进门右手的小房间与原本厨房之间的窗户拆掉打通,拿出一部分空间出来作为过道,在过道两边做了柜子,增加空间的收纳;另一部分作为一个独立的书房,书桌与榻榻米的组合,可以同时满足工作、休闲和收纳的功能

3.变更了卫生间的开门位置,与原本厨房之间的过道设计为独立的厨房空间,增加了空间的利用率

4.儿童房隔出了一小间作为储藏间,可以作为孩子日常用品的收纳

5.主卧与阳台的窗户打通,没有设置门,作为主卧的延伸,集休闲与生活阳台为一体.室内设计师

门厅

进入门厅,地面铺贴了带有复古韵味的小花砖,带来一种淡淡的美,让素净的屋子尽显魅力,也给人一种暖意。与客餐厅浅灰色的地砖相衔接,给人一种干净清爽的感觉。一回到家里,推开门的那一刻,心情都会变得愉悦起来。

门厅与过道处设计了两处拱形门洞,非常的个性,带来了视觉上的延伸与层次感。

餐厅

餐厅配上一款轻巧而个性的小吊灯,可以成为我们就餐时的视觉焦点,平衡空间的同时又提升了整体的颜值。墙面安装了酒红色和灰白色的两个挂钩,小猪的形状充满创意性,可以提升立面空间的收纳利用率,营造情趣的空间氛围。室内设计师

墙面搭配上一组复古装饰画,立显出小家的温馨雅致,浓浓的温情,家的温暖,营造出一份休闲式的浪漫。餐桌上的优雅花瓶、鲜花、蓝色的水杯、金色的水果盘,也为我们的生活带来了满满的仪式感。

酒红色的餐椅,集简约与美学于一身,带来了视觉上的冲击感,演绎恰到好处的摩登时尚。

客餐厅之间没有做特别的分隔,而是一体式相连的格局,对于小户型来说这样可以更合理的利用空间,整体营造出一种舒适而又温馨的氛围。室内设计师

客厅

客厅选购了一款焦糖色的沙发,既低调又华丽,高级而摩登;1.8米的长度,外观新颖时尚,曲线温柔而细腻,打造出精致优雅的生活状态。沙发背景墙做了白色与酒红色的撞色,视觉上显得活泼生动,白色不仅能弱化酒红色的浓郁,也会让空间上更加抢眼和复古。

客厅的布置不是越多越好,而是以宽敞舒适为宜,所以我们在此处搭配了一款直径32公分的小茶几。茶几虽小,却是客厅的心脏。黑金色的组合,既高级又优雅,独具一格的造型成为了客厅空间的点睛之笔。

可米设计

设计收费:面议 元/平             

擅长类型: 家装、豪宅、别墅

在线咨询

扫描二维码关注我们的微信

深圳市聚设汇文化传媒有限公司
主编热线:15602987227
总部:深圳市罗湖区梨园路128号宝能汽车大楼416单元
佛山、东莞、成都、重庆、福州、厦门、南昌、武汉、
杭州、苏州、温州、郑州、长春、沈阳、贵阳、柳州、
哈尔滨、九江等城市设立办事处
© 2017-2021 Jsheh.com 版权所有 粤ICP备17079093号
展开
回到顶部