

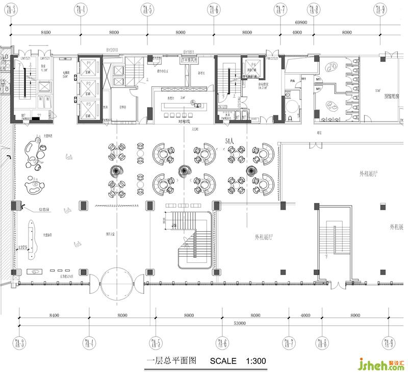
《桃花源记》的重点是“不知有汉,无论魏晋”。我们室内设计延续“世外桃源”的意境,酒店平面设计曲径通幽、歩移景换,在狭窄静谧的入口玄关等待徐徐平移打开的酒店大门,同时也是在等待一曲抑扬顿挫的优雅的酒店“水”故事乐章的开始。大门完全敞开后,展现给客人的是比玄关更高大和恢宏的酒店大厅,先抑后扬的空间节奏,在这里得到了完美的体现。随后呈现给客人的是受宋朝范宽《溪山行旅图》气势磅礴构图启发的服务台背景。酒店大门正对面是一个屏风,隔而不断,承前启后,在交通中心的大堂仅一线之隔就创造出一个安静、酒店设计优雅的大堂吧休闲社交空间。像中国园林一样充满了变化和惊喜。酒店室内用材分区明确、整体,用材冷暖恰当,和谐统一。保持独特的风格,鲜明的水主题,优雅祥和的氛围,力求在每个客人内心中创造一个世外桃源,并且,可行,可望,可居,可游。
The interior design continues the artistic conception of paradise. The plane design of the hotel is winding and moving. In the narrow and quiet entrance, we are waiting for the hotel gate to be opened slowly. At the same time, we are waiting for the beginning of an elegant hotel "water" story movement. After the door is fully opened, the lobby of the hotel, which is larger and magnificent than the entrance, is shown to the guests. The rhythm of the space that descends first and then rises is perfectly embodied here. Opposite the hotel entrance is a screen, connecting the past and the future, creating a quiet and elegant lobby bar for leisure and social space in the lobby of the transportation center. It is full of changes and surprises like a Chinese garden. The interior materials used in the hotel are clearly divided and integrated, and the materials used are suitable for heating and cooling, and are harmonious and unified. Designers maintain a unique style, a distinctive water theme, and an elegant and peaceful atmosphere, and strive to create a paradise in each guest's heart. It is feasible, promising, habitable, and accessible.







我们做酒店设计的初衷:整个酒店所有的造型的出现,都是对整个室内设计的总结,但是我们为什么要去做这个造型,不仅是为了描述空间,酒店设计也不仅仅是营造水主题,更关注客人置身不同的位置产生的心理变化,让焦虑的客人安静,情绪低落的客人看到希望,每一位客人内心在变化中获得快乐,唤起其内心美好的善念,这才是我们酒店空间“水”故事设计的终极追求。
The designer pays attention to the psychological changes of the guests when they are in different positions. We hope to let anxious guests be quiet, and depressed guests can see hope, be happy in their hearts, and arouse everyone's good benevolence. This is the pursuit of our hotel space "water" story design.



更多酒店设计请关注聚设汇装修平台: