房间除了主光源还设计了嵌入式的筒灯和起夜壁灯,室内设计师可以根据屋主的需求自行选择光源氛围,细节处凸显舒适生活
线条感十足的床头柜搭配别致的贝壳壁灯,随手一拍便是时髦的床头小景。
阳光尚好,微风徐徐的午后,看着时间在书页上流淌,也是一种乐趣。
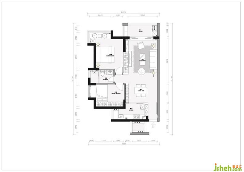
次卧面积不大,也暂时无人居住。结合屋主的储物需求,室内设计师我们打造了一整面的衣柜,帮助分担主卧的收纳压力,设计与飘窗相连的榻榻米,将空间物尽其用

小花砖搭配石纹墙砖,小空间也能有属于自己的层次感。
选择壁挂式马桶和台下盆的设计,可以减少卫生清理死角,室内设计师打理起来更方便。浴室柜底部设计成悬空,提高防潮性能,上方的镜柜是封闭和开放柜格相结合的方式,拿取常用物品更便捷。

