欢迎光临聚设汇,装修找设计就上聚设汇!
   咨询电话:15602987227
登录    注册
聚设汇
首页 > 商业 > 有惑茶集

有惑茶集

露台:松软的沙滩,辽阔星空,耳边涛声阵阵……儿时的美好画面再次萦绕在眼前。

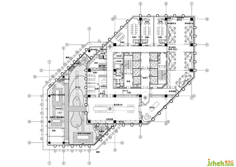
平面图

更多店铺装修设计请关注聚设汇装修平台:

昆山叙品空间设计有限公司董事长

设计收费:面议 元/平             

擅长类型: 餐饮、会所、办公、酒店

在线咨询

扫描二维码关注我们的微信

深圳市聚设汇文化传媒有限公司
主编热线:15602987227
总部:深圳市罗湖区梨园路128号宝能汽车大楼416单元
佛山、东莞、成都、重庆、福州、厦门、南昌、武汉、
杭州、苏州、温州、郑州、长春、沈阳、贵阳、柳州、
哈尔滨、九江等城市设立办事处
© 2017-2021 Jsheh.com 版权所有 粤ICP备17079093号
展开
回到顶部