项目信息
项目名称:鱼棠
项目地址:中国河北石家庄
设计面积:800㎡
竣工时间:2020.11.1
业主单位:光明渔港餐饮集团
设计公司:叁上叁空间设计
创意总监:霍庆涛
执行总监:何秀莹
施工团队:金蜗牛装饰
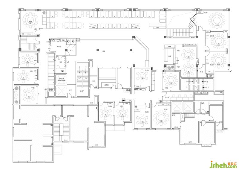
平面图
“将中国传统造园的手法运用到餐厅设计中去,形成独特的游历动线和空间感受!” ——叁上叁空间设计创意总监-霍庆涛


鱼棠是河北餐饮龙头企业光明渔港在新的餐饮大环境下的一次创新,也是餐饮大店社区化的一次尝试,除了价格更加亲民以外,出品也更加聚焦,对环境的要求也更加时尚和前卫。




我们结合鱼棠的品牌文化及出品需求,对空间的塑造做了一次大胆的创新和尝试。



