欢迎光临聚设汇,装修找设计就上聚设汇!
   咨询电话:15602987227
登录    注册
聚设汇
首页 > 商业 > 贵阳中建华府写字楼样板间

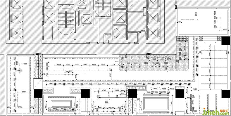
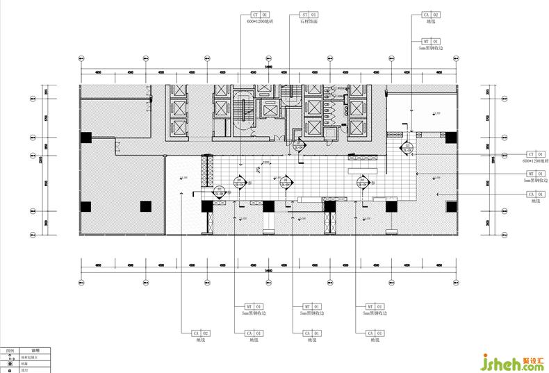
贵阳中建华府写字楼样板间

大面积落地窗的会议室设计,将空间气质与窗外四时之景紧密联系起来,办公室设计朝霞夕晖、时新景致为空间注入新鲜活力,带给人明媚的心情。

办公室设计

深圳市柏菲雅装饰设计有限公司 设计总监 广东省装饰协会设计专业委员会 理事 室内设计十大杰出青年

设计收费:面议 元/平             

擅长类型: 会所,办公,酒店,售楼处

在线咨询

扫描二维码关注我们的微信

深圳市聚设汇文化传媒有限公司
主编热线:15602987227
总部:深圳市罗湖区梨园路128号宝能汽车大楼416单元
佛山、东莞、成都、重庆、福州、厦门、南昌、武汉、
杭州、苏州、温州、郑州、长春、沈阳、贵阳、柳州、
哈尔滨、九江等城市设立办事处
© 2017-2021 Jsheh.com 版权所有 粤ICP备17079093号
展开
回到顶部