Project name | 香景大厦
House location丨深圳·福田
Area type | 76.6㎡
Designer | 黄媛
香景大厦1996年建成,此次我们要深圳装修设计的是其中一间76.6㎡的房子,时光斑驳的痕迹明显,见证着成长和岁月变迁。如今,设计打破陈旧, 改变家的风格与底蕴,但温暖与爱始终会伴随着居者,共同经历下一个25年、50年······
设计分析 ANALYSIS
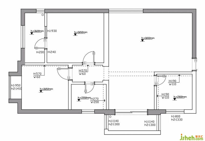
△原始平面图
1.拆除了一个小房间,扩宽餐厅面积,开阔主空间视野
2.将厨房打开,并建一体化岛台餐桌,满足功能需求,形成连贯的使用性
3.主卧与客厅中间定制嵌入式柜体,即完美利用了空间,两面又可置物,主卧也更大限度的引入自然光线,温暖舒适
△设计平面图
01
“在简明中,向内生长,向外生活”
一镜到底的客餐厅将原来的面貌完全覆盖,整体呈现出自在舒服的感觉,所选用的材质,以及搭配的色彩,也都根据居者的气质而定,点缀绿色、棕色,清雅中透出淡然,又显沉稳自信。

进入客厅,白色、、灰色、木色交织,铺垫静好,酝酿出令人沉醉的温暖气息,身处其中,心态微醺,仿若归尘到最极致的舒适,却又十分真实。

一下子将周身压力/疲惫/情绪卸下,慢悠悠走到书架前,打开之前没听完的音乐专辑,然后拿出一本书,落座沙发,或休憩片刻,柔和地灯光映照在书页上,清风从窗外吹进来,摇曳角落的绿色叶子,一边汲取着精神的粮食,一边享受自然的“扰动”,简单而又安静深圳装修设计。

简单是艺术,粗犷的雕塑、装置亦然,凹凸质感打破了单调的平面视角,使空间更立体多元,夸张的女性雕塑与麦子形成对应,将原始质朴蔓延开,轻吟一首浪漫的《风吹麦浪》。
视野拉长,可见餐厅,开阔的格局,仿佛这个家大了一倍,主色彩一气呵成,统一连贯,在材质、纹理上做了区分,明确功能性。一个人也好,三五知己也好,都可以在这样的空间里,待很久很久,而不舍离去。

