欢迎光临聚设汇,装修找设计就上聚设汇!
   咨询电话:15602987227
登录    注册
聚设汇
首页 > 家装 > 蔚蓝

蔚蓝

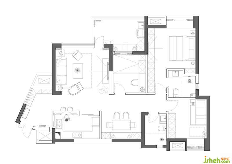
项目名称:蔚蓝

项目地址:四川成都

设计师:罗天振

客厅墙面选择将蓝色绿色色彩纯度降低,明度中度,家具配以各类同色系蓝色绿色丰富空间色彩层次,以黄色、橙色、奶咖色、咖色软装作为互补,让空间更为和谐,冷暖结合,色彩搭配更加灵动。

室内设计师

成都宏福樘装饰有限公司

设计收费:面议 元/平             

擅长类型: 家装、豪宅、别墅

在线咨询

我的作品更多>>

扫描二维码关注我们的微信

深圳市聚设汇文化传媒有限公司
主编热线:15602987227
总部:深圳市罗湖区梨园路128号宝能汽车大楼416单元
佛山、东莞、成都、重庆、福州、厦门、南昌、武汉、
杭州、苏州、温州、郑州、长春、沈阳、贵阳、柳州、
哈尔滨、九江等城市设立办事处
© 2017-2021 Jsheh.com 版权所有 粤ICP备17079093号
展开
回到顶部