欢迎光临聚设汇,装修找设计就上聚设汇!
   咨询电话:15602987227
登录    注册
聚设汇
首页 > 商业 > DR BEAUTY

DR BEAUTY

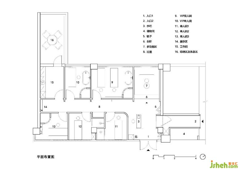
在这一个不到100㎡的美容中心,设计师放入了前台、水吧、下沉式沙发、三个包间、两个带沐浴桶的VIP房间、一个工作间、一个阳台等丰富多变的功能布局。

又通过一个架空的长方形木盒子,联通了原有的美发中心。

广州黑白木空间设计

设计收费:面议 元/平             

擅长类型: 现代,别墅,豪宅

在线咨询

我的作品更多>>

扫描二维码关注我们的微信

深圳市聚设汇文化传媒有限公司
主编热线:15602987227
总部:深圳市罗湖区梨园路128号宝能汽车大楼416单元
佛山、东莞、成都、重庆、福州、厦门、南昌、武汉、
杭州、苏州、温州、郑州、长春、沈阳、贵阳、柳州、
哈尔滨、九江等城市设立办事处
© 2017-2021 Jsheh.com 版权所有 粤ICP备17079093号
展开
回到顶部