欢迎光临聚设汇,装修找设计就上聚设汇!
   咨询电话:15602987227
登录    注册
聚设汇
首页 > 商业 > 长沙城发恒伟洋湖映售楼处设计

长沙城发恒伟洋湖映售楼处设计

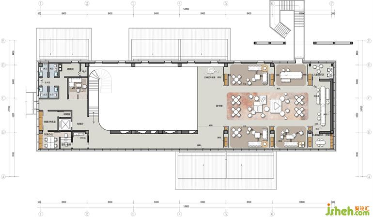
视觉终端的大型旋转楼梯是通往二楼的主通道,楼梯底部踏步结合水景,长沙售楼处设计组合成名为“汲泉”的室内活水造景。站在楼梯上倚栏回望,整个空间尽收眼底。 

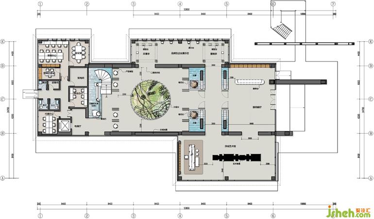
二楼开放式的洽谈区被命名为《御书楼》,长沙售楼处设计开放式的布局结合半通透的书架将空间适当分隔,让客户在此达到身心愉悦的洽谈体验。

整个售楼的过程便如同一场跨越时空的文化之旅,尽可能的消隐其中冷冰冰的商业氛围。 能够与文脉对话,与空间交流。长沙售楼处设计成为一个有“温度”的空间,一个有感情的空间,一个有人情味的空间,就是设计的意义之所在,也是吾辈追求的空间美学。

更多长沙售楼处设计请关注聚设汇装修平台:

深圳市昊泽空间设计有限公司总经理及设计总监

设计收费:面议 元/平             

擅长类型: 地产、住宅、会所、茶楼

在线咨询

扫描二维码关注我们的微信

深圳市聚设汇文化传媒有限公司
主编热线:15602987227
总部:深圳市罗湖区梨园路128号宝能汽车大楼416单元
佛山、东莞、成都、重庆、福州、厦门、南昌、武汉、
杭州、苏州、温州、郑州、长春、沈阳、贵阳、柳州、
哈尔滨、九江等城市设立办事处
© 2017-2021 Jsheh.com 版权所有 粤ICP备17079093号
展开
回到顶部