项目名称:岩上大红袍茶馆
项目面积:70m²
主案设计:郭坤仲 潘泽宏
参与设计:张军 李维兵
文:杨紫悦
喝茶,于国人而言,
远不止是诗意的消遣,
更是种生活哲学符号,所谓“世味煮成茶”。
而喝茶的场所,
亦被赋予了超出一般空间的意义厦门餐饮设计。
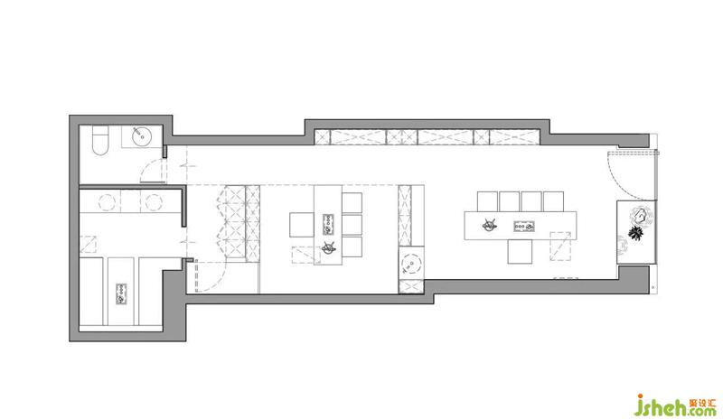
受限于狭长的基地条件,
设计师摒弃了繁复的元素,
顺势而为,
依次铺陈各功能区,
在极简的框架内达成中式独有的空间节奏感,
并打通原有阁楼以求增加层高、不显压抑。
借助收银区分隔的开放式泡茶区,
营造犹抱琵琶半遮面的障景效果;
隐匿于储物柜后的包厢厦门餐饮设计,
满足了部分客户对私密性的需求。


汉字中,人在草木间即为“茶”,
茶室自然少不了绿植,
入户便能撞见的造景及三两盆栽就这么应运而生了。
因着耐脏、脏看,选用的水磨石瓷砖,
倒也让人想起首小诗厦门餐饮设计,
“你别赤脚在这散步,我的花园到处是星星的碎片”。



更多厦门餐饮设计请咨询