欢迎光临聚设汇,装修找设计就上聚设汇!
   咨询电话:15602987227
登录    注册
聚设汇
首页 > 商业 > 海珠同创汇·Goodman展厅设计

海珠同创汇·Goodman展厅设计

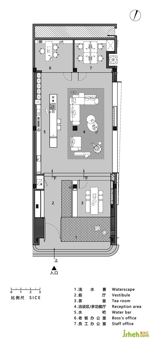
展厅侧面面向园内道路,大玻璃橱窗的巧妙设计,展厅设计把外立面的不利条件包裹,使室内日与夜的不同氛围如海报画般随时间流逝而切换呈现。此刻如隐归于此,感受时光缓缓流转,如梦恬静。

“我们将不断革新冷暖产品的生产科技,由优秀的工人使用先进的设备制造空调产品,并以高性价比在市场上销售。”

——哈罗德·古德曼

更多展厅设计请关注聚设汇装修平台:

共生形态(C&C DESIGN)创始人、设计总监,高级室内建筑师。

设计收费:1000 元/平             

擅长类型: 酒店,样板房,售楼处,办公室,展厅

在线咨询

扫描二维码关注我们的微信

深圳市聚设汇文化传媒有限公司
主编热线:15602987227
总部:深圳市罗湖区梨园路128号宝能汽车大楼416单元
佛山、东莞、成都、重庆、福州、厦门、南昌、武汉、
杭州、苏州、温州、郑州、长春、沈阳、贵阳、柳州、
哈尔滨、九江等城市设立办事处
© 2017-2021 Jsheh.com 版权所有 粤ICP备17079093号
展开
回到顶部