欢迎光临聚设汇,装修找设计就上聚设汇!
   咨询电话:15602987227
登录    注册
聚设汇
首页 > 商业 > 成都保利锦城和颂体验中心装修设计

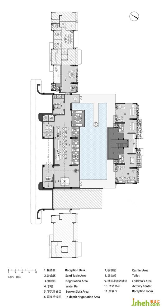
成都保利锦城和颂体验中心装修设计

历经千翻浮沉事,方知人间烟火珍。从孔子居九夷到刘禹锡写下《陋室铭》,从郑板桥的书斋到冯纪忠建造“何陋轩”,先辈的某些生活经验可能不常被提起,但跨越几千年的时光始终尚存一息。成都保利锦城和颂体验中心,试图用设计的语言嫁接起与上述先辈沟通的桥梁,成都保利锦城和颂体验中心装修设计在现代性之中嵌入鲜活的自然,在物欲之外淬炼出能安顿身心的生活空间。让空间里的每一位访客,都能自在吐纳胸中块垒,周而复始,生生不息。

更多成都保利锦城和颂体验中心装修设计请关注聚设汇装修平台:

共生形态(C&C DESIGN)创始人、设计总监,高级室内建筑师。

设计收费:1000 元/平             

擅长类型: 酒店,样板房,售楼处,办公室,展厅

在线咨询

扫描二维码关注我们的微信

深圳市聚设汇文化传媒有限公司
主编热线:15602987227
总部:深圳市罗湖区梨园路128号宝能汽车大楼416单元
佛山、东莞、成都、重庆、福州、厦门、南昌、武汉、
杭州、苏州、温州、郑州、长春、沈阳、贵阳、柳州、
哈尔滨、九江等城市设立办事处
© 2017-2021 Jsheh.com 版权所有 粤ICP备17079093号
展开
回到顶部