#04
游荡其中:生活与艺术的双重在场
Wandering in it:
The Dual Presence of Life and Art
林中漫步
最重要的,是驻足停留的时刻
最重要的,是记得重返生活


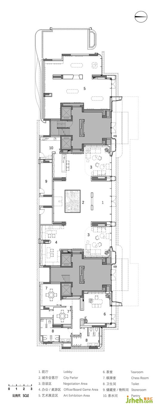
靠近自然,重建邻里日常。在这里,重庆保利天玺壹号售楼部装修设计以艺术为支点,巧妙地向外输出社区生活的精神性名片,在售楼之外,更销售一种独属于艺术邻里空间的公共日常生活。由此,在空间设计上,完成从自然向人文的交互与渗透,构建艺术与生活的双重在场。
在社区公共空间中,塑造艺术现场,就是塑造生活与美的可能性。


整个项目,起始于一种对抽象的自然元素(树林)的外在特征的把握,最终又回落到一种艺术性自然(艺术现场与雕塑)的强调中,在绚丽与留白的互文下,形成内与外、形式与内容的双重呼应。
最后,值得一提的是,将售楼中心从一种临时的、功能单一的、强调装饰性的传统构建思路中挣脱出来,重庆保利天玺壹号售楼部装修设计将其转变为一种可持续的、社区共享的、人文艺术与业态共融的集合性场所,其背后彰显的是对于本真生活的切实关注,以此推动着社区邻里日常生发的多种可能。


在这里,美学成为生活自洽的一部分;而生活,即空间目的本身。
更多重庆保利天玺壹号售楼部装修设计请关注聚设汇装修平台: