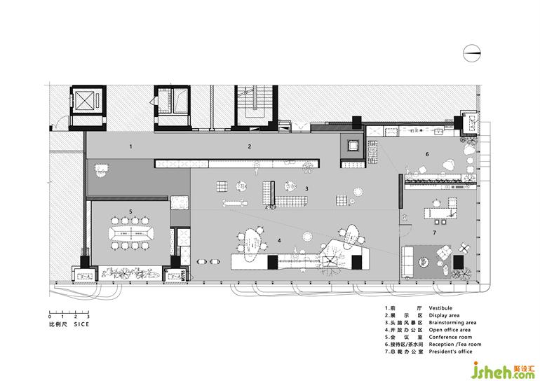
“绿色会议
置身一片绿植林中,为日常的会议注入盎然生机。绿色环保、可持续发展,始终是离不开的话题……
海口办公室设计树影婆娑的会议室,生态和生命一样充满自驱力。
物质过载环境承压的当下,当科技、文化、审美及可持续理念彼此滋养混生,人们总是希望,即便心有所累,但身体仍朝向自然。






“闲暇自在
海口办公室设计对于设计师来说,只有足够放松的头脑,才有更新颖的创意迸发……
不只有生态需要多样性,办公空间亦然。
在自然生态的基础上对“轻工作”理念的提取和呈现,消解了人与人、人与工作、人与空间之间的隔膜,形成相互形塑的关系。
套用雷蒙德·卡佛那句诘问——当我们谈论工作时,我们在谈论什么?打破限制,模糊边界,在这个交流空间高达50%以上的开放性办公环境之中,工作的价值不再由埋头伏案中诞生,而是在自然而然中似花般绽放。



更多海口办公室设计请关注聚设汇装修平台: