滤
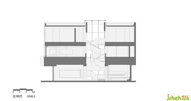
仿佛与繁盛的工业时代在空间叙事中迭合交织,过去的事物得以再次与未来产生关联。二三层连廊以桥的形式跨过主厅,串联起不同的功能空间。
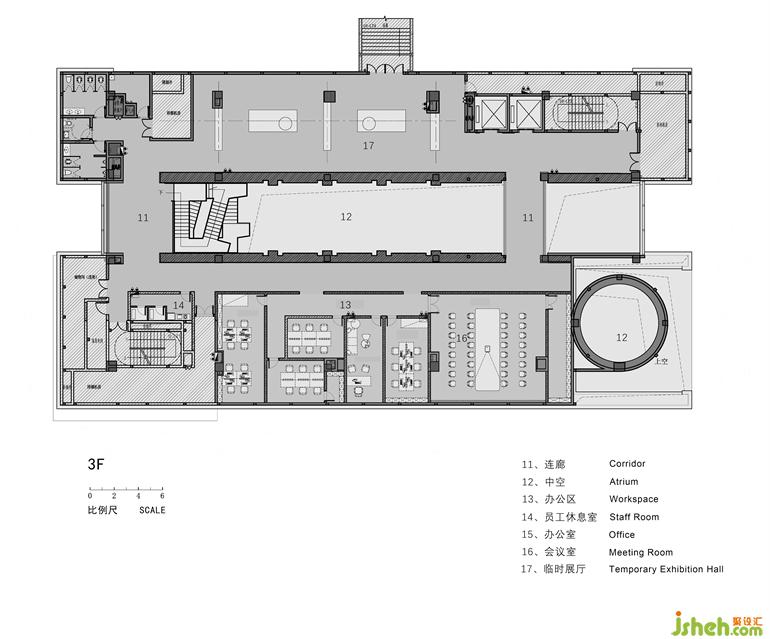
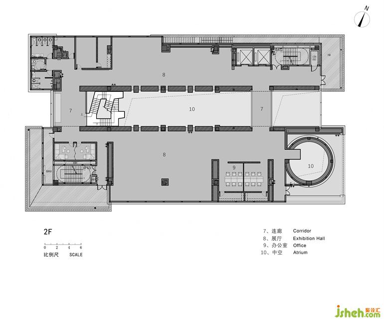
博物馆设计在二层常设展厅中,带着岁月印记的制糖机器和老物件展现着粗犷的工业质感,与崭新的空间并置,如同一个轮回。分展厅的功能则灵活多变,能够与这个城市的未来共同成长。


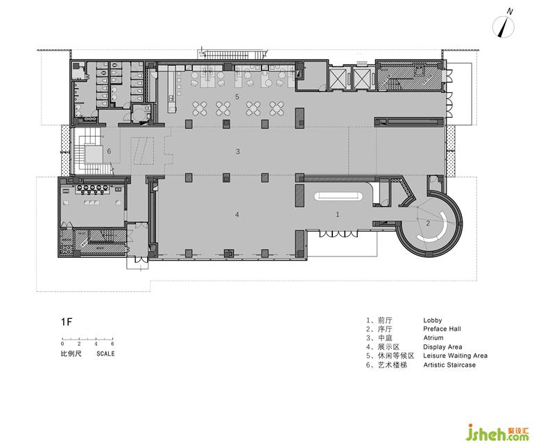
糖厂博物馆的落成是一种新生,也是一种传承。在许多城市的角落,工业化时代的废弃建筑亟待被重新利用,升级为新的价值空间。从曾经的工业生产到现代化的社区生活,是新的内涵,让它们完成了具有更广泛市民性的城市新公共空间的迭代。
在城市更新进步的同时,我们乐于去找寻关于城市与人关系更深的认同。






更多博物馆设计请关注聚设汇装修平台: