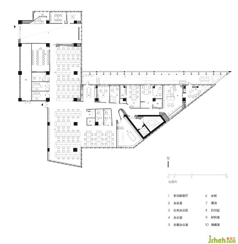
办公室外是接近三十米的狭长露台,一端连接着茶水区,另一端连接着创始人办公室,与内部的白色走廊相对应,形成完整的闭环。办公总部设计在露台上铺以砾石,种上狼尾草,野趣横生。露台一侧是广州美院安静的校园,玻璃幕墙那边则车水马龙的都市盛景。
A nearly 30-meter-long narrow terraceis designed outside the office, with one end connecting to the tea area, and the other connecting to the founder's office. The terrace corresponds to the white corridor inside, forming a complete closed loop. A sense of natural wildness is felt, as the terrace is covered by gravels and Pennisetum. On one side of the terrace is the quiet campus of Guangzhou Academy of Fine Arts, while on the other side of the glass curtain wall is the bustling urban scene.






更多办公总部设计请关注聚设汇装修平台: