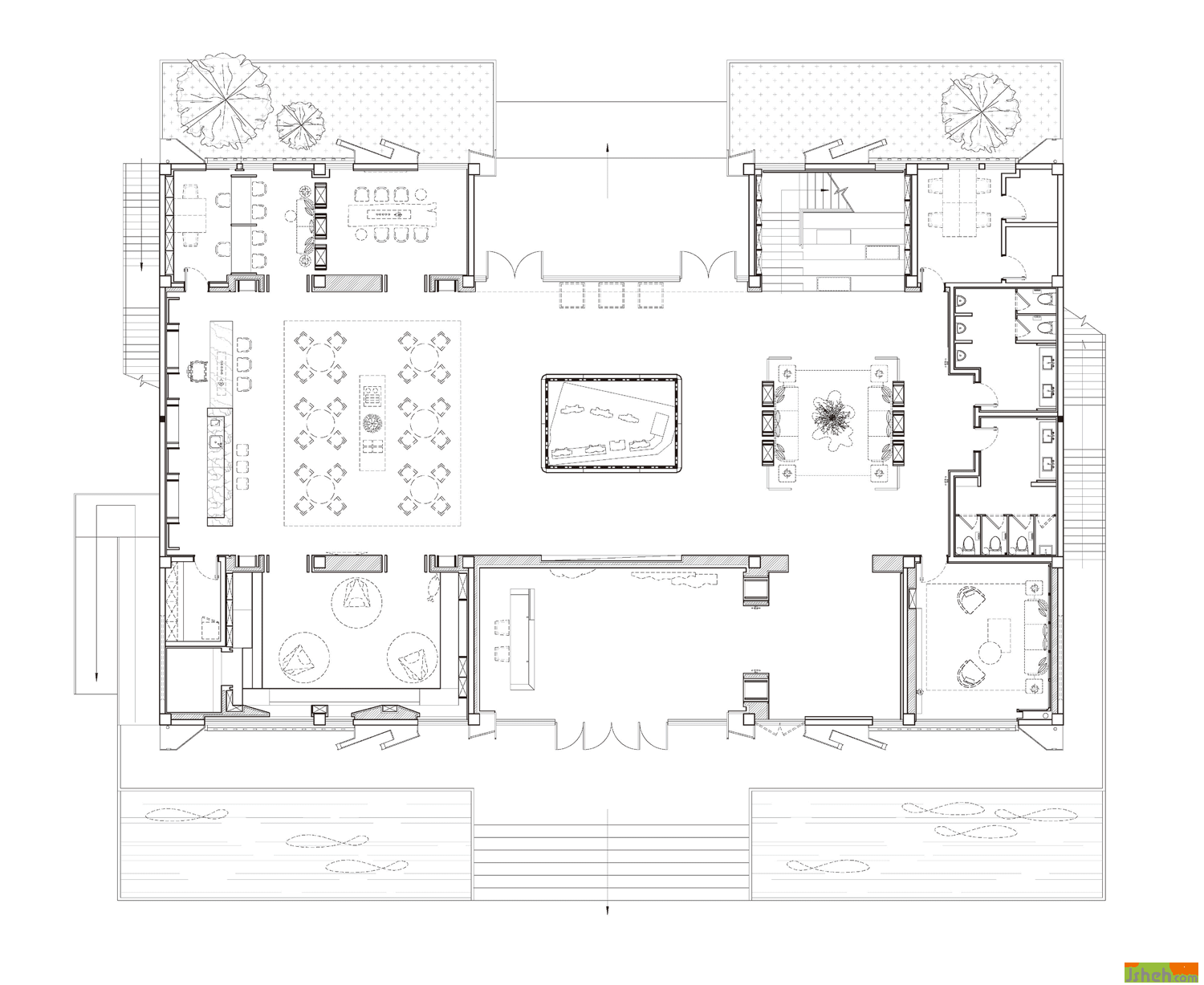
在销售任务结束后,销售中心将还原为小区的门楼、厅堂和物业的邻里中心。销售中心讲究格调,用以安放受众对未来生活的期许,而还原后将成为受众的日常生活场所,这岂非也是一个从观想世界到世俗世界的转变过程?为避免大拆大建,减少二次拆改,设计师对比还原前后的空间,通过详细拆解动线规划,将销售空间与未来生活空间作出最大限度的重叠共生,保证空间利用率的同时,将浪费与消耗减至最小。售楼处设计


三盛璞悦府,设计试图将观想的世界转化向日常的世界,把日常的世界引向观想的世界,让两者在同一个空间相遇、对话,这种探索本身似乎在讲述某种体悟,也似乎在述说一个故事。从世俗走向神圣,是求道;从神圣走向世俗,是豁达;在这个项目里,设计师希望做到的,是唤起身临其境者对空间精神旨趣的认同,无论阳春白雪抑或下里巴人,都能够在其中转变或共生。售楼处设计


