上世纪一次大战的时候,大英帝国的无畏舰序列里有一艘叫“阿金库尔”的七炮塔战列舰,是当时皇家海军舰艇中火炮最多,舱室最豪华的战列舰——马桶都是金的。但是整个战争期间,没开过一炮。或者讲没有任何一任舰长敢让这艘舰的主炮齐射一次。原因很简单,那原本是忽悠外国人而建造的样子货——七座炮塔的主炮同时开火,很可能会将军舰扯断。

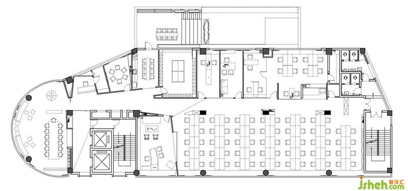
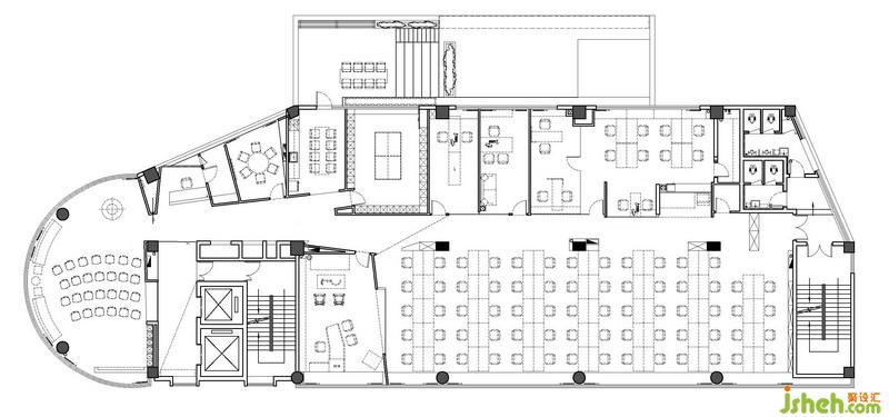
作为工作的场地,既无必要“七炮塔”这样的样子货,也不必要追求日耳曼式的数字化带来的“酷”。它的本质就是一间办公室。能体现清晰的人员流线,工作秩序,也就展示出了一个思路清晰,合乎逻辑的设计。其余的,不在话下。


室内设计师
室内设计师
室内设计师
室内设计师
室内设计师